Sale
Lease
Blog
About us
+ Add property
Menu
List of offers
14
14
14
204 314 US$
(4 751 US$ / m²)
Sale
2
1
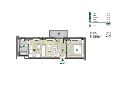
43 m²
Show on map
Add to favorites
Share
bedroom
2
flat
43 m²
bathrooms
1
lift
Yes
parking
No
state
Other
basement
No
terrace
No
Description
Translate to English
[b]HĽADÁTE PRÍJEMNÉ BÝVANIE V LONE PRÍRODY NA ÚPÄTÍ MALÝCH KARPÁT? TÁTO PONUKA VÁS URČITE OČARÍ[/b]
Ponúkame na predaj 1-3 izbové byty v piatich 3-...
Show full description
Parameters
Equipment & features
lift
Parameters
State:
Other
Energy intensity:
A - Extremely economical
Building type:
Brick
Heating type:
Other
Floor:
2. floor of 3
Age of the offer:
222days
Updated:
222days
Report ad
Localities
The location is approximate, we do not know the exact address.
Request exact address
Enlarge map
Civic amenities
1.BCR s.r.o.
Tomáš Hudec
Show Email
Show phone
Contact seller
1.BCR s.r.o.
Tomáš Hudec
Show Email
Show phone
Contact seller
Similar ads
|
Similar abroad
|
Sale
Apartments
Slovakia