Sale
Lease
Development projects
Blog
About us
+ Add property
Log in
Menu
List of offers
47 305 US$
(157 US$ / ft²)
Sale
5
1
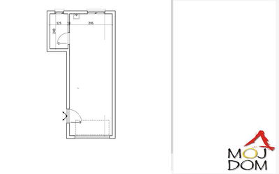
301.39 ft²
Божидара Аџије
Show on map
Add to favorites
Share
bedroom
5
flat
301.39 ft²
bathrooms
1
lift
No
parking
No
state
Other
basement
No
terrace
No
Description
Translate to English
Petrovaradin! rok za kraj gradnje je prolece 2024.god.
Apartman u prizemlju zgrade. Kupovina samo za kes.
Prodajemo stan na izuzetno mirnoj lokaciji...
Show full description
Parameters
Parameters
Ownership:
The type of ownership determines the legal relationship to the property – personal, cooperative, or state/municipal.
Other
State:
The current condition of the property in terms of reconstruction - before, after, or during reconstruction.
Other
Building type:
Other
Heating type:
Heat pump
Equipment:
Other
Age of the offer:
400days
Updated:
399days
Report ad
Localities
Божидара Аџије
The location is approximate, we do not know the exact address.
Request exact address
Enlarge map
Civic amenities
MOJ DOM - AGENCIJA ZA NEKRETNINE
Dragana Zorić
Show Email
Show phone
Contact seller
MOJ DOM - AGENCIJA ZA NEKRETNINE
Dragana Zorić
Show Email
Show phone
Contact seller
Similar ads
Similar abroad
Sale
Apartments
Serbia
Contact seller
Call