SUPA24
Other
106 009 US$
(3 420 US$ / m²)
Sale
5
1
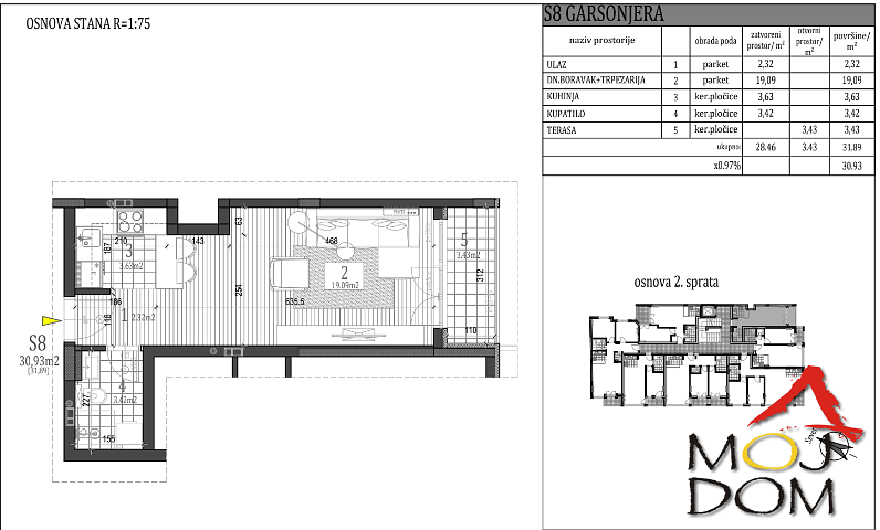
31 m²

bedroom5
flat31 m²
bathrooms1
liftNo
parkingNo
stateOther
basementNo
terraceNo

Description

Nova Detelinara!
Izgradnja stana visokog kvaliteta na fenomenalnoj lokaciji!
Stan, strukturno odličnog rasporeda i veličine, nalazi se na jednoj od n...

Parameters

Parameters

Ownership:
Other
State:
Other
Building type:
Other
Heating type:
District Heating
Equipment:
Other
Age of the offer: 329days
Updated: 328days

Localities

The location is approximate, we do not know the exact address.

Civic amenities

MOJ DOM - AGENCIJA ZA NEKRETNINE


Dragana Zorić

Similar ads

Similar abroad