Sale
Rent
Blog
About us
+ Add Property
Menu
List of Offers
8
8
8
147 917 US$
(2 595 US$ / m²)
Sale
1 bedroom
1
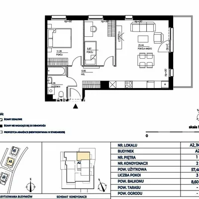
57 m²
Stankiewicza, Gdańsk
Show on map
To Favorites
Share
bedroom
0
area
57 m²
bathrooms
1
elevator
No
parking
No
state
basement
No
terrace
No
Description
Translate to English
NOWA INWESTYCJA NA MAPIE GDAŃSKA Mamy przyjemność przedstawić nową inwestycję, składającą się z 6 bloków wielorodzinnych . Zaledwie 4 kondygnacje ora...
Show full description
Parameters
Parameters
Ownership:
Other
Building Type:
Other
Heating Type:
Central remote
Furnished:
Other
Age of offer:
749 days
Updated:
748 days
Report ad
Location
Stankiewicza, Gdańsk
The location is approximate, the exact address is unknown.
Request exact address
Enlarge map
property.detail.other_info.civic_amenities
BRACIA SADURSCY
Arkadiusz Zemła
Show Email
Show Phone
Contact Seller
BRACIA SADURSCY
Arkadiusz Zemła
Show Email
Show Phone
Contact Seller
Similar offers
|
Similar Abroad
|
Sale
Apartments
Poland