Sale
Rent
Blog
About us
+ Add Property
Menu
List of Offers
8
8
8
124 830 US$
(2 837 US$ / m²)
Sale
2
1
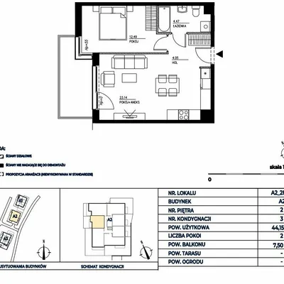
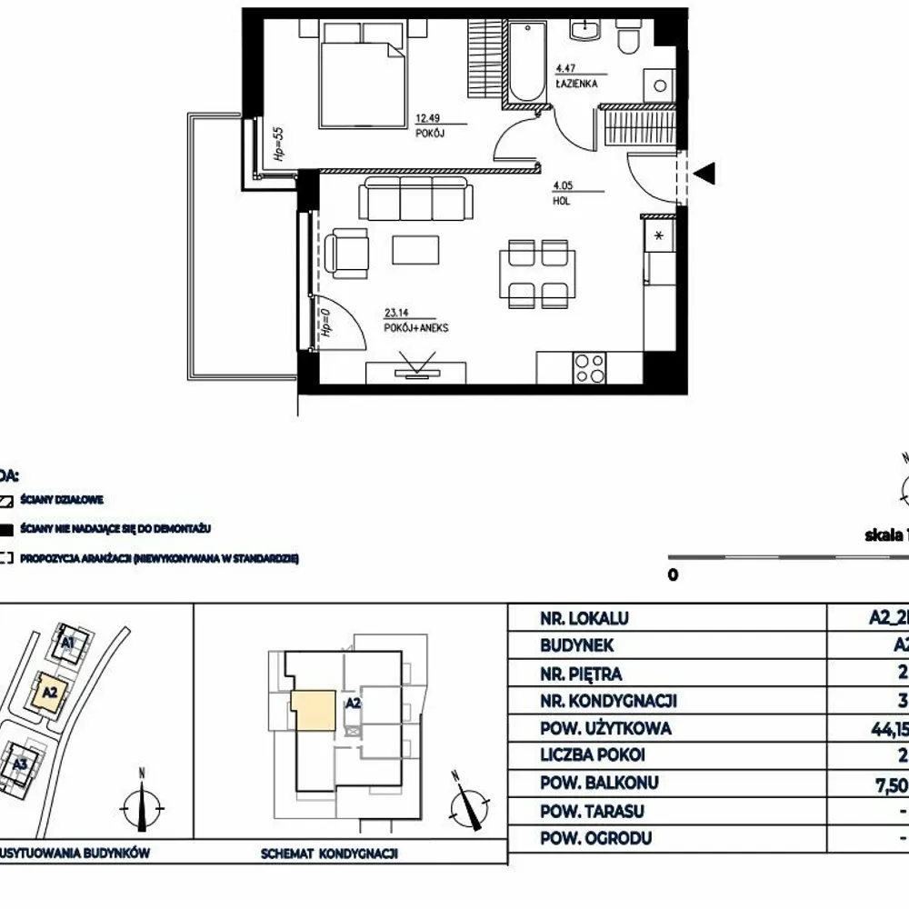
44 m²
Stankiewicza, Gdańsk
Show on map
To Favorites
Share
bedroom
1
area
44 m²
bathrooms
1
elevator
No
parking
Yes
state
New Building
basement
No
terrace
No
Description
Translate to English
NOWA INWESTYCJA NA MAPIE GDAŃSKA
Mamy przyjemność przedstawić nową inwestycję, składającą się z 6 bloków wielorodzinnych . Zaledwie 4 kondygnacje o...
Show full description
Parameters
Equipment & Features
Garden
Parameters
Ownership:
Personal
State:
New Building
Building Type:
Aerated Concrete
Heating Type:
Central remote
Furnished:
Unfurnished
Show all parameters
Age of offer:
750 days
Updated:
747 days
Report ad
Location
Stankiewicza, Gdańsk
The location is approximate, the exact address is unknown.
Request exact address
Enlarge map
property.detail.other_info.civic_amenities
BRACIA SADURSCY
Arkadiusz Zemła
Show Email
Show Phone
Contact Seller
BRACIA SADURSCY
Arkadiusz Zemła
Show Email
Show Phone
Contact Seller
Similar offers
|
Similar Abroad
|
Sale
Apartments
Poland