Sale
Rent
Blog
About us
+ Add Property
Menu
List of Offers
13
13
13
111 090 US$
(2 923 US$ / m²)
Sale
2
1
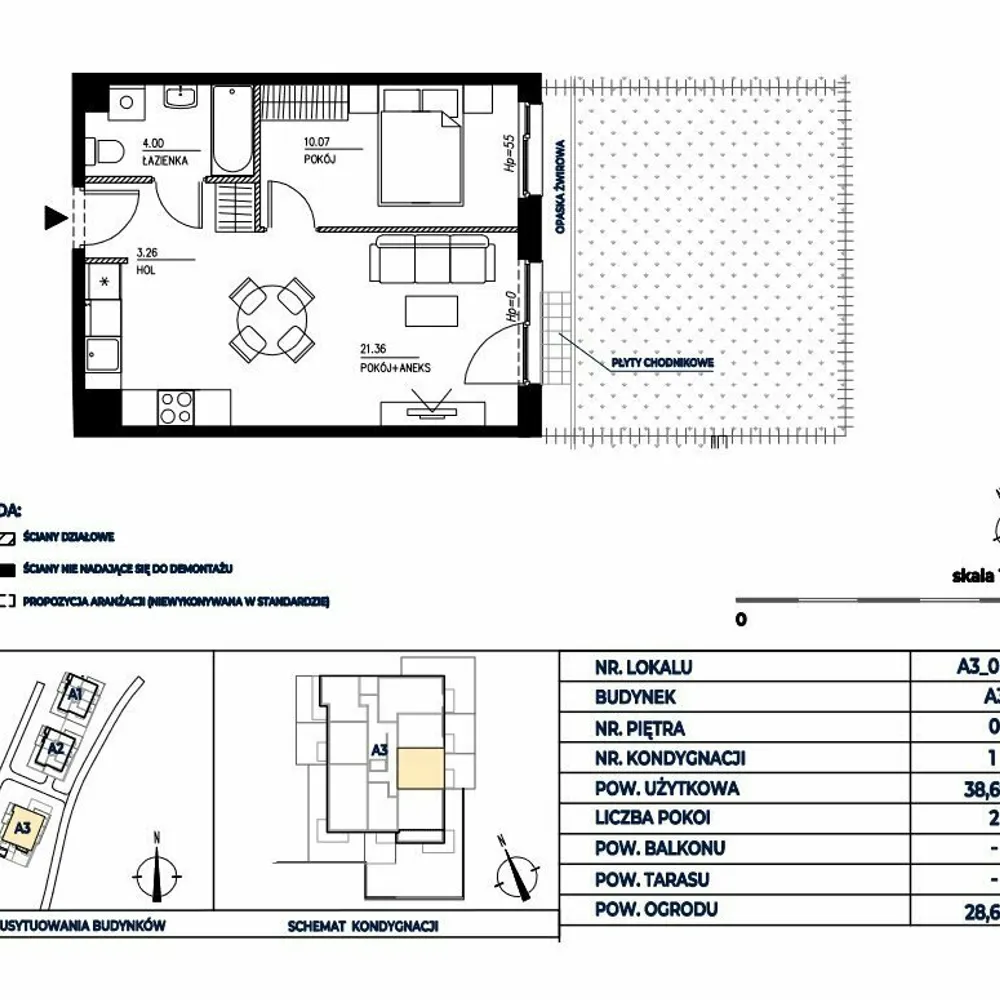
38 m²
Stankiewicza, Gdańsk
Show on map
To Favorites
Share
bedroom
0
area
38 m²
bathrooms
1
elevator
No
parking
No
state
basement
No
terrace
No
Description
Translate to English
NOWA INWESTYCJA NA MAPIE GDAŃSKA Mamy przyjemność przedstawić nową inwestycję, składającą się z 6 bloków wielorodzinnych . Zaledwie 4 kondygnacje ora...
Show full description
Parameters
Parameters
Ownership:
Other
Building Type:
Other
Heating Type:
Central remote
Furnished:
Other
Age of offer:
804 days
Updated:
803 days
Report ad
Location
Stankiewicza, Gdańsk
The location is approximate, the exact address is unknown.
Request exact address
Enlarge map
property.detail.other_info.civic_amenities
BRACIA SADURSCY
Arkadiusz Zemła
Show Email
Show Phone
Contact Seller
BRACIA SADURSCY
Arkadiusz Zemła
Show Email
Show Phone
Contact Seller
Similar offers
|
Similar Abroad
|
Sale
Apartments
Poland