Sale
Rent
Blog
About us
+ Add Property
Menu
List of Offers
5
5
5
235 824 US$
(4 535 US$ / m²)
Sale
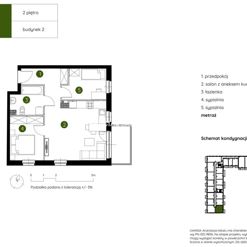
1 bedroom
1
52 m²
Pękowicka, Kraków
Show on map
To Favorites
Share
bedroom
0
area
52 m²
bathrooms
1
elevator
No
parking
No
state
basement
No
terrace
No
Description
Translate to English
Z ogromną przyjemnością przedstawiamy Państwu ofertę mieszkania na sprzedaż w malowniczym rejonie Doliny Prądnika, na północy Krakowa, blisko granicy...
Show full description
Parameters
Equipment & Features
Internet
Parameters
Ownership:
Other
Building Type:
Other
Heating Type:
Other
Furnished:
Other
Age of offer:
23 days
Updated:
5 days
Report ad
Location
Pękowicka, Kraków
The location is approximate, the exact address is unknown.
Request exact address
Enlarge map
property.detail.other_info.civic_amenities
BRACIA SADURSCY
Patrycja Rubinkiewicz
Show Email
Show Phone
Contact Seller
BRACIA SADURSCY
Patrycja Rubinkiewicz
Show Email
Show Phone
Contact Seller
Similar offers
|
Similar Abroad
|
Sale
Apartments
Poland