Sale
Lease
Blog
About us
+ Add property
Menu
List of offers
9
9
9
375 391 US$
(3 754 US$ / m²)
Sale
6+
1
100 m²
Show on map
Add to favorites
Share
bedroom
6+
flat
100 m²
bathrooms
1
lift
No
parking
No
state
Other
basement
No
terrace
Yes
Description
Translate to English
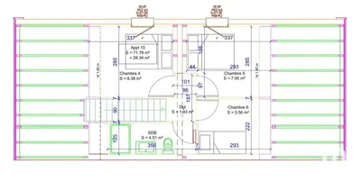
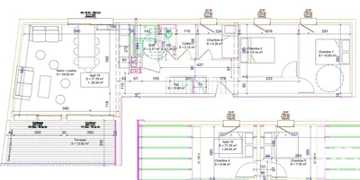
iad France - Laurent Medina (07 63 31 00 98) vous propose : DERNIER APPARTEMENT NEUF À SAISIR AU LIORAN !OFFRE EXCEPTIONNELLE !Appartement T5 Duplex a...
Show full description
Parameters
Parameters
Ownership:
Other
State:
Other
Building type:
Other
Heating type:
Other
Equipment:
Other
Show all parameters
Age of the offer:
213days
Updated:
175days
Report ad
Localities
The location is approximate, we do not know the exact address.
Request exact address
Enlarge map
Civic amenities
IAD France
Show phone
Contact seller
IAD France
Show phone
Contact seller
Similar ads
|
Similar abroad
|
Sale
Apartments
France