Prodej
Pronájem
Blog
O nás
+ Přidat nemovitost
Menu
Výpis nabídek
58 000 Kč
(637 Kč / m²)
Pronájem
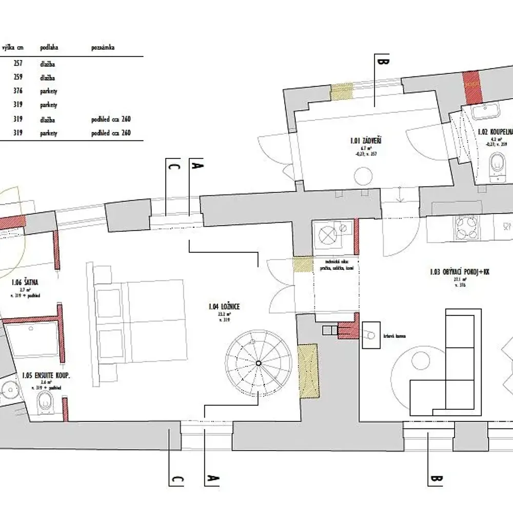
3+kk
91 m²
Loretánské náměstí, Praha
Zobrazit na mapě
Do oblíbených
Sdílet
místnosti
3+kk
plocha
91 m²
koupelny
1
výtah
Ne
parkování
Ne
stav
Po rekonstrukci
suterén
Ne
terasa
Ne
Popis
KAVKA REAL ESTATES Vám exkluzivně zprostředkují k pronájmu rodinný dům 3+kk o užitné ploše 91 m2 a celkové ploše 116 m2 na ulici Loretánské náměstí, P...
Zobrazit celý popis
Parametry
Parametry
Vlastnictví:
Osobní
Stav:
Po rekonstrukci
Energetická náročnost:
G - Mimořádně nehospodárná
Typ budovy:
Ostatní
Typ vytápění:
Plynové
Zobrazit všechny parametry
Stáří nabídky:
75 dní
Aktualizováno:
74 dní
Nahlásit inzerát
Lokalita
Loretánské náměstí, Praha
Lokalita je orientační, neznáme přesnou adresu.
Požádat o přesnou adresu
Zvětšit mapu
Občanská vybavenost
KAVKA REAL ESTATES
Lukáš Kavka
Zobrazit E-mail
Zobrazit telefon
Kontaktovat prodejce
KAVKA REAL ESTATES
Lukáš Kavka
Zobrazit E-mail
Zobrazit telefon
Kontaktovat prodejce
Podobné inzeráty
|
Podobné v zahraničí
|
Pronájem
Byty
Česko
Hlavní město Praha
Praha
Staré Město