SUPA24
Ostatní
Ostatní
Ostatní
Ostatní
Ostatní
6 204 754 Kč
(144 297 Kč / m²)
Prodej
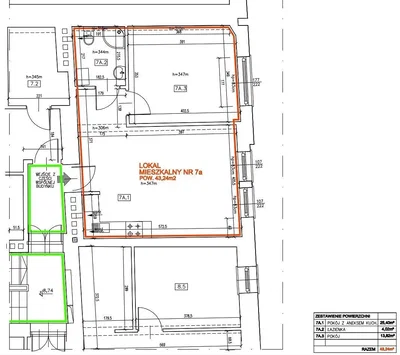
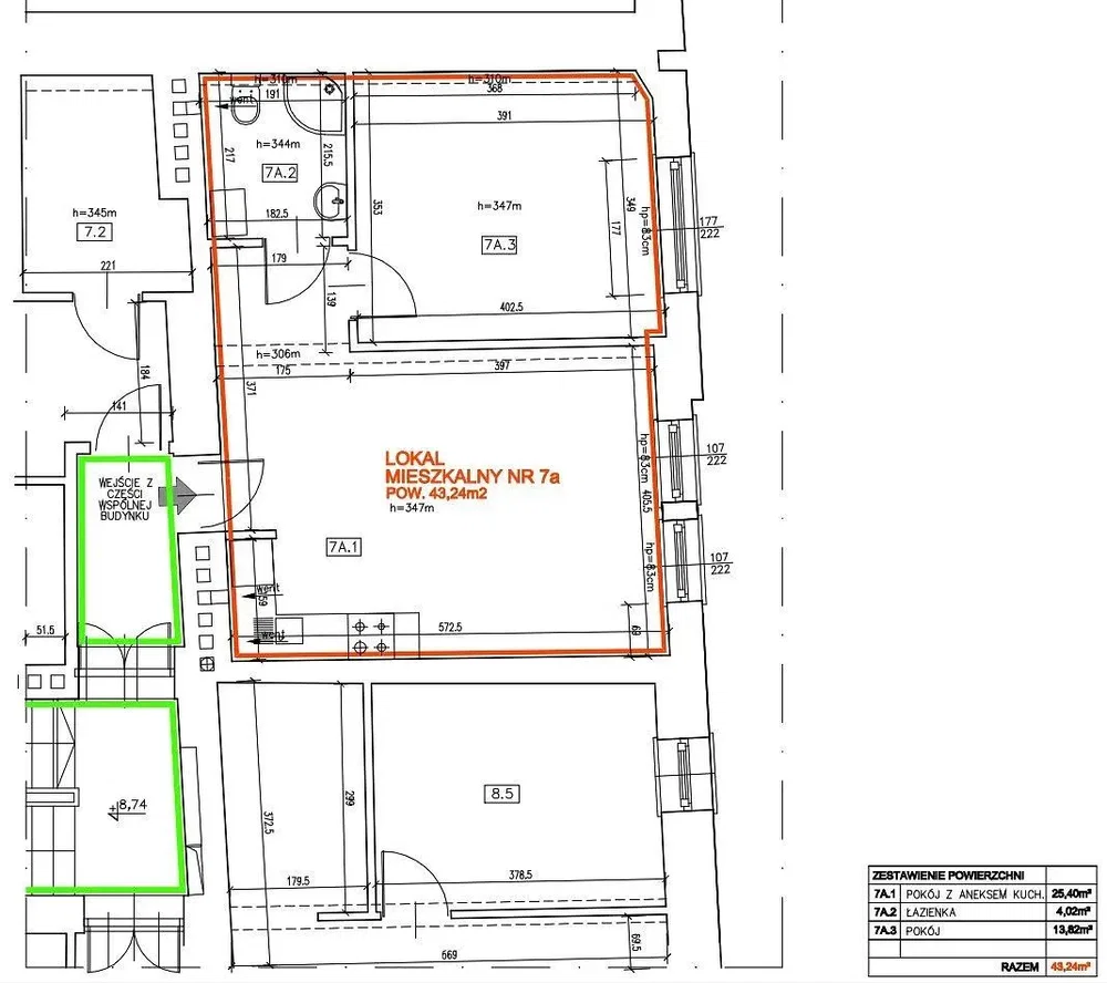
2+1
43 m²
Szlak, Kraków

místnosti2+1
plocha43 m²
koupelny1
výtahNe
parkováníNe
stav
suterénAno
terasaNe

Popis

WWW.KRAKOWSKAKAMIENICA.PL WYJĄTKOWA OFERTA - NIERUCHOMOŚĆ W CENTRUM NAJLEPSZĄ CENĘ ORAZ WSZYSTKIE NIEZBĘDNE INFORMACJE WRAZ Z WYLICZENIAMI KOSZTÓW UZ...

Parametry

Vybavení & vlastnosti

Parametry

Vlastnictví:
Ostatní
Typ budovy:
Cihla
Typ vytápění:
Ostatní
Vybavení:
Ostatní
Podlaží:
2. podlaží z 5
Stáří nabídky: 418 dní
Aktualizováno: 3 dní

Lokalita

Szlak, Kraków
Lokalita je orientační, neznáme přesnou adresu.

Občanská vybavenost

KRAKOWSKA KAMIENICA


Tomasz Myśliwiec

Podobné inzeráty

Podobné v zahraničí