Prodej
Pronájem
Blog
O nás
+ Přidat nemovitost
Menu
Výpis nabídek
8 229 165 Kč
(47 024 Kč / m²)
Prodej
2+1
175 m²
Rabat, West Malta
Zobrazit na mapě
Do oblíbených
Sdílet
místnosti
2+1
plocha
175 m²
koupelny
2+
výtah
Ano
parkování
Ne
stav
Ostatní
suterén
Ne
terasa
Ano
Popis
Přeložit do češtiny
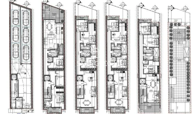
Brand new first floor three bedroom apartment for sale in a quite neighbourhood in Rabat. This spacious property has many features including an open p...
Zobrazit celý popis
Parametry
Vybavení & vlastnosti
Garáž
Výtah
Zahrada
Parametry
Vlastnictví:
Ostatní
Stav:
Ostatní
Typ budovy:
Ostatní
Vybavení:
Ostatní
Stáří nabídky:
663 dní
Aktualizováno:
621 dní
Nahlásit inzerát
Lokalita
Rabat, West Malta
Lokalita je orientační, neznáme přesnou adresu.
Požádat o přesnou adresu
Zvětšit mapu
Občanská vybavenost
Sara Grech Limited
Margaret, Sara Grech Ltd LEK Business Centre Triq L’Esportaturi CBD Zone 2 Birkirkara, CBD 2040
Zobrazit E-mail
Zobrazit telefon
Kontaktovat prodejce
Sara Grech Limited
Margaret, Sara Grech Ltd LEK Business Centre Triq L’Esportaturi CBD Zone 2 Birkirkara, CBD 2040
Zobrazit E-mail
Zobrazit telefon
Kontaktovat prodejce
Podobné inzeráty
|
Podobné v zahraničí
|
Prodej
Byty
Malta