Prodej
Pronájem
Blog
O nás
+ Přidat nemovitost
Přihlásit se
Menu
Výpis nabídek
4
4
16 880 831 Kč
(205 864 Kč / m²)
Prodej
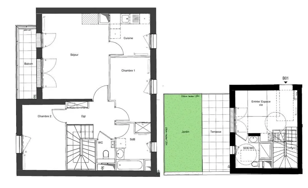
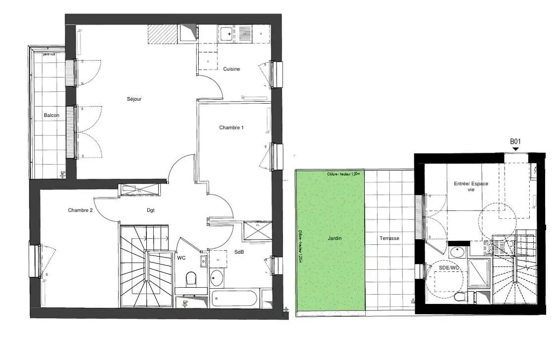
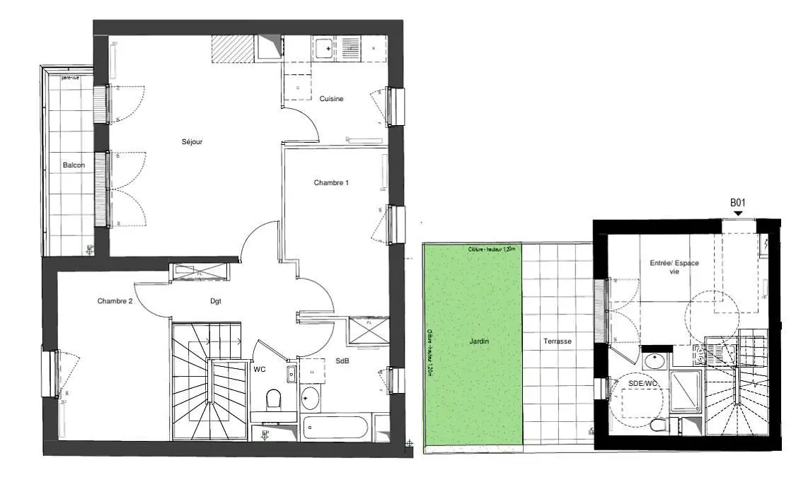
4+1
82 m²
Boulevard Washington, Suresnes
Zobrazit na mapě
Do oblíbených
Sdílet
místnosti
4+1
plocha
82 m²
koupelny
1
výtah
Ne
parkování
Ne
stav
Ostatní
suterén
Ne
terasa
Ne
Popis
Přeložit do češtiny
Fiche N°Id-LGB167051 : Suresnes, 4 Pi?ces 4p duplex - terrasse jardin et pk d'environ 82 m2 comprenant 4 piece(s) dont 3 chambre(s) + Terrasse de 31 m...
Zobrazit celý popis
Parametry
Parametry
Vlastnictví:
Typ vlastnictví určuje právní vztah k nemovitosti – osobní, družstevní nebo státní/obecní.
Ostatní
Stav:
Aktuální stav nemovitosti z hlediska rekonstrukce – před, po, nebo v průběhu rekonstrukce.
Ostatní
Typ budovy:
Ostatní
Typ vytápění:
Ostatní
Vybavení:
Ostatní
Stáří nabídky:
2 dní
Aktualizováno:
2 dní
Nahlásit inzerát
Lokalita
Boulevard Washington, Suresnes
Lokalita je orientační, neznáme přesnou adresu.
Požádat o přesnou adresu
Zvětšit mapu
Občanská vybavenost
Réseau Immo-diffusion
Zobrazit telefon
Kontaktovat prodejce
Réseau Immo-diffusion
Zobrazit telefon
Kontaktovat prodejce
Podobné inzeráty
Podobné v zahraničí
Prodej
Byty
Francie
Kontaktovat prodejce