Prodej
Pronájem
Blog
O nás
+ Přidat nemovitost
Menu
Výpis nabídek
16
16
16
28 636 697 Kč
(298 299 Kč / m²)
Prodej
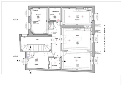
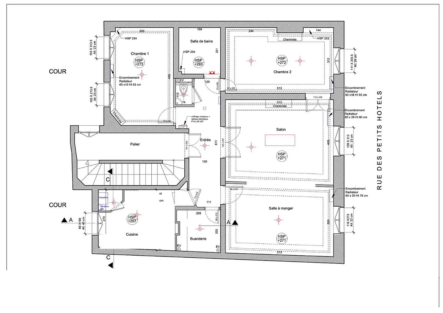
4+1
96 m²
Rue des Petits Hôtels, Paris
Zobrazit na mapě
Do oblíbených
Sdílet
místnosti
4+1
plocha
96 m²
koupelny
1
výtah
Ne
parkování
Ne
stav
Ostatní
suterén
Ne
terasa
Ne
Popis
Přeložit do češtiny
Métro Poissonnière, Face à l'église Saint Vincent de Paul, situé au 3ème étage d'un charmant immeuble très bien entretenu, cet appartement distribué ...
Zobrazit celý popis
Parametry
Parametry
Vlastnictví:
Ostatní
Stav:
Ostatní
Energetická náročnost:
D - Méně úsporná
Typ budovy:
Ostatní
Typ vytápění:
Ostatní
Zobrazit všechny parametry
Stáří nabídky:
5 dní
Aktualizováno:
3 dní
Nahlásit inzerát
Lokalita
Rue des Petits Hôtels, Paris
Lokalita je orientační, neznáme přesnou adresu.
Požádat o přesnou adresu
Zvětšit mapu
Občanská vybavenost
ERA VILLIERS
Zobrazit telefon
Kontaktovat prodejce
ERA VILLIERS
Zobrazit telefon
Kontaktovat prodejce
Podobné inzeráty
|
Podobné v zahraničí
|
Prodej
Byty
Francie