Prodej
Pronájem
Blog
O nás
+ Přidat nemovitost
Menu
Výpis nabídek
6
6
6
6 611 995 Kč
(73 467 Kč / m²)
Prodej
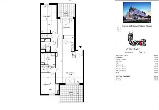
4+1
90 m²
Rue Roger Rouan, Béziers
Zobrazit na mapě
Do oblíbených
Sdílet
místnosti
4+1
plocha
90 m²
koupelny
1
výtah
Ne
parkování
Ne
stav
Ostatní
suterén
Ne
terasa
Ne
Popis
Přeložit do češtiny
Situé sur l'Avenue du Président Wilson, à deux pas du prestigieux Plateau des Poètes et du dynamique centre commercial Le Polygone, cet appartement T4...
Zobrazit celý popis
Parametry
Parametry
Vlastnictví:
Ostatní
Stav:
Ostatní
Typ budovy:
Ostatní
Typ vytápění:
Ostatní
Vybavení:
Ostatní
Stáří nabídky:
3 dní
Aktualizováno:
3 dní
Nahlásit inzerát
Lokalita
Rue Roger Rouan, Béziers
Lokalita je orientační, neznáme přesnou adresu.
Požádat o přesnou adresu
Zvětšit mapu
Občanská vybavenost
Propriétés Privées
Zobrazit telefon
Kontaktovat prodejce
Propriétés Privées
Zobrazit telefon
Kontaktovat prodejce
Podobné inzeráty
|
Podobné v zahraničí
|
Prodej
Byty
Francie