Prodej
Pronájem
Blog
O nás
+ Přidat nemovitost
Menu
Výpis nabídek
16
16
16
3 219 056 Kč
(60 737 Kč / m²)
Prodej
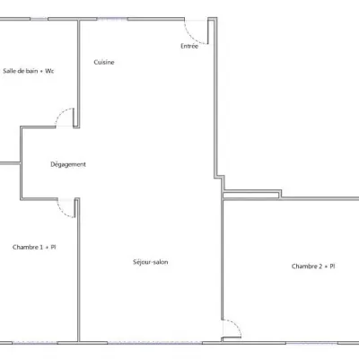
3+1
53 m²
La Roche-sur-Yon
Zobrazit na mapě
Do oblíbených
Sdílet
místnosti
3+1
plocha
53 m²
koupelny
1
výtah
Ne
parkování
Ne
stav
Ostatní
suterén
Ne
terasa
Ne
Popis
Přeložit do češtiny
iad France - Celine Monoy vous propose: EN EXCLUSIVITÉ ! APPARTEMENT 53m2 - CENTRE VILLE - PENTAGONE - 2 CHAMBRES - RÉNOVÉAppartement de 53m2, entière...
Zobrazit celý popis
Parametry
Parametry
Vlastnictví:
Ostatní
Stav:
Ostatní
Energetická náročnost:
D - Méně úsporná
Typ budovy:
Ostatní
Typ vytápění:
Ostatní
Zobrazit všechny parametry
Stáří nabídky:
65 dní
Aktualizováno:
4 dní
Nahlásit inzerát
Lokalita
La Roche-sur-Yon
Lokalita je orientační, neznáme přesnou adresu.
Požádat o přesnou adresu
Zvětšit mapu
Občanská vybavenost
IAD France
Zobrazit telefon
Kontaktovat prodejce
IAD France
Zobrazit telefon
Kontaktovat prodejce
Podobné inzeráty
|
Podobné v zahraničí
|
Prodej
Byty
Francie