Prodej
Pronájem
Blog
O nás
+ Přidat nemovitost
Menu
Výpis nabídek
4
4
4 984 442 Kč
(99 689 Kč / m²)
Prodej
2+1
50 m²
Zobrazit na mapě
Do oblíbených
Sdílet
místnosti
2+1
plocha
50 m²
koupelny
1
výtah
Ano
parkování
Ne
stav
Ostatní
suterén
Ne
terasa
Ano
Popis
Přeložit do češtiny
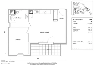
Sur la commune de Bonneville au coeur d'une résidence senior, à découvrir cet appartement 3 pièces à vendre de 49m2.L'appartement comprend une belle p...
Zobrazit celý popis
Parametry
Vybavení & vlastnosti
Výtah
Parametry
Vlastnictví:
Ostatní
Stav:
Ostatní
Energetická náročnost:
A - Extrémně úsporná
Typ budovy:
Ostatní
Typ vytápění:
Tepelné čerpadlo
Zobrazit všechny parametry
Stáří nabídky:
215 dní
Aktualizováno:
215 dní
Nahlásit inzerát
Lokalita
Lokalita je orientační, neznáme přesnou adresu.
Požádat o přesnou adresu
Zvětšit mapu
Občanská vybavenost
L'edelweiss Immobilier
Zobrazit telefon
Kontaktovat prodejce
L'edelweiss Immobilier
Zobrazit telefon
Kontaktovat prodejce
Podobné inzeráty
|
Podobné v zahraničí
|
Prodej
Byty
Francie