Prodej
Pronájem
Developerské projekty
Blog
O nás
+ Přidat nemovitost
Přihlásit se
Menu
Výpis nabídek
6
6
6
3 017 052 Kč
(27 679 Kč / m²)
Prodej
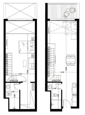
Atypický
109 m²
شارع يوسف عفيفى
Zobrazit na mapě
Do oblíbených
Sdílet
místnosti
Atypický
plocha
109 m²
koupelny
2+
výtah
Ne
parkování
Ne
stav
Ostatní
suterén
Ne
terasa
Ne
Popis
Přeložit do češtiny
Unit Details• Property Type: Duplex• Bedrooms: 1• Bathrooms: 2• Floor: 1st Floor• View: Pool & Sea View• Size: 109 sqmPrice• £107,900 / €124,800• Main...
Zobrazit celý popis
Parametry
Vygenerováno z AI
Štítky jsou automaticky generovány umělou inteligencí na základě fotografií a popisu nemovitosti.
Výhled
Podlaží
Samostatné wc
Parametry
Vlastnictví:
Typ vlastnictví určuje právní vztah k nemovitosti – osobní, družstevní nebo státní/obecní.
Ostatní
Stav:
Aktuální stav nemovitosti z hlediska rekonstrukce – před, po, nebo v průběhu rekonstrukce.
Ostatní
Typ budovy:
Ostatní
Typ vytápění:
Ostatní
Vybavení:
Ostatní
Stáří nabídky:
49 dní
Aktualizováno:
23 dní
Nahlásit inzerát
Lokalita
شارع يوسف عفيفى
Lokalita je orientační, neznáme přesnou adresu.
Požádat o přesnou adresu
Zvětšit mapu
Občanská vybavenost
Padsabroad
Zobrazit telefon
Kontaktovat prodejce
Padsabroad
Zobrazit telefon
Kontaktovat prodejce
Podobné inzeráty
Podobné v zahraničí
Prodej
Byty
Egypt
Kontaktovat prodejce