Prodej
Pronájem
Blog
O nás
+ Přidat nemovitost
Menu
Výpis nabídek
12
12
12
4 243 319 Kč
(78 580 Kč / m²)
Prodej
3+1
54 m²
Monvidalska, Pula
Zobrazit na mapě
Do oblíbených
Sdílet
místnosti
3+1
plocha
54 m²
koupelny
1
výtah
Ne
parkování
Ne
stav
Ostatní
suterén
Ne
terasa
Ne
Popis
Přeložit do češtiny
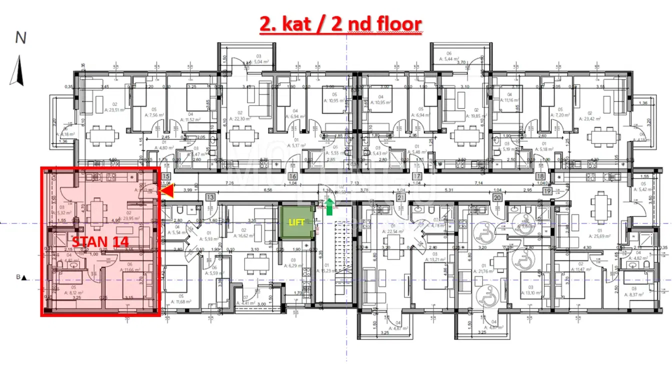
PULA – MONVIDAL | NOVOGRADNJA | STAN 14 – 2. KAT | 54,57 m²
U ponudi je stan oznake 14 u novom stambenom projektu u naselju Monvidal, Pula, smješten ...
Zobrazit celý popis
Parametry
Vybavení & vlastnosti
Klimatizace
Parametry
Vlastnictví:
Ostatní
Stav:
Ostatní
Typ budovy:
Ostatní
Typ vytápění:
Ostatní
Vybavení:
Ostatní
Zobrazit všechny parametry
Stáří nabídky:
53 dní
Aktualizováno:
50 dní
Nahlásit inzerát
Lokalita
Monvidalska, Pula
Lokalita je orientační, neznáme přesnou adresu.
Požádat o přesnou adresu
Zvětšit mapu
Občanská vybavenost
Mololongo Realestate
Zoran Stupar
Zobrazit E-mail
Zobrazit telefon
Kontaktovat prodejce
Mololongo Realestate
Zoran Stupar
Zobrazit E-mail
Zobrazit telefon
Kontaktovat prodejce
Podobné inzeráty
Podobné v zahraničí
Prodej
Byty
Chorvatsko