Prodej
Pronájem
Developerské projekty
Blog
O nás
+ Přidat nemovitost
Přihlásit se
Menu
Výpis nabídek
6
6
6
10 526 908 Kč
(103 205 Kč / m²)
Prodej
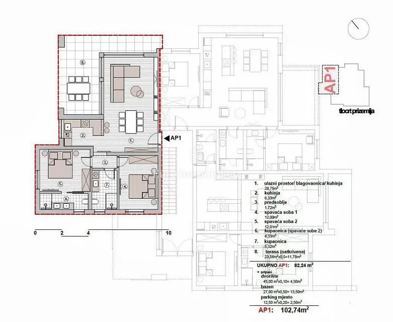
3+1
102 m²
Općina Tisno
Zobrazit na mapě
Do oblíbených
Sdílet
místnosti
3+1
plocha
102 m²
koupelny
2+
výtah
Ne
parkování
Ne
stav
Ostatní
suterén
Ne
terasa
Ano
Popis
Přeložit do češtiny
NOVOGRADNJA
ODLIČNA LOKACIJA
Prodaje se apartman u Betini u prizemlju sa bazenom blizu mora.
Apartman se nalazi u stambenoj zgradi koja ima ukupno 7 ...
Zobrazit celý popis
Parametry
Vybavení & vlastnosti
Klimatizace
Parametry
Vlastnictví:
Typ vlastnictví určuje právní vztah k nemovitosti – osobní, družstevní nebo státní/obecní.
Ostatní
Stav:
Aktuální stav nemovitosti z hlediska rekonstrukce – před, po, nebo v průběhu rekonstrukce.
Ostatní
Typ budovy:
Ostatní
Typ vytápění:
Ostatní
Vybavení:
Ostatní
Stáří nabídky:
17 dní
Aktualizováno:
17 dní
Nahlásit inzerát
Lokalita
Općina Tisno
Lokalita je orientační, neznáme přesnou adresu.
Požádat o přesnou adresu
Zvětšit mapu
Občanská vybavenost
Euro Immobilen d. o. o.
Ivana Stevanović
Zobrazit E-mail
Zobrazit telefon
Kontaktovat prodejce
Euro Immobilen d. o. o.
Ivana Stevanović
Zobrazit E-mail
Zobrazit telefon
Kontaktovat prodejce
Podobné inzeráty
Podobné v zahraničí
Prodej
Byty
Chorvatsko
Kontaktovat prodejce
Zavolat