SUPA24
Obývací pokoj
Obývací pokoj
14 302 553 Kč
(122 244 Kč / m²)
Prodej
4+1
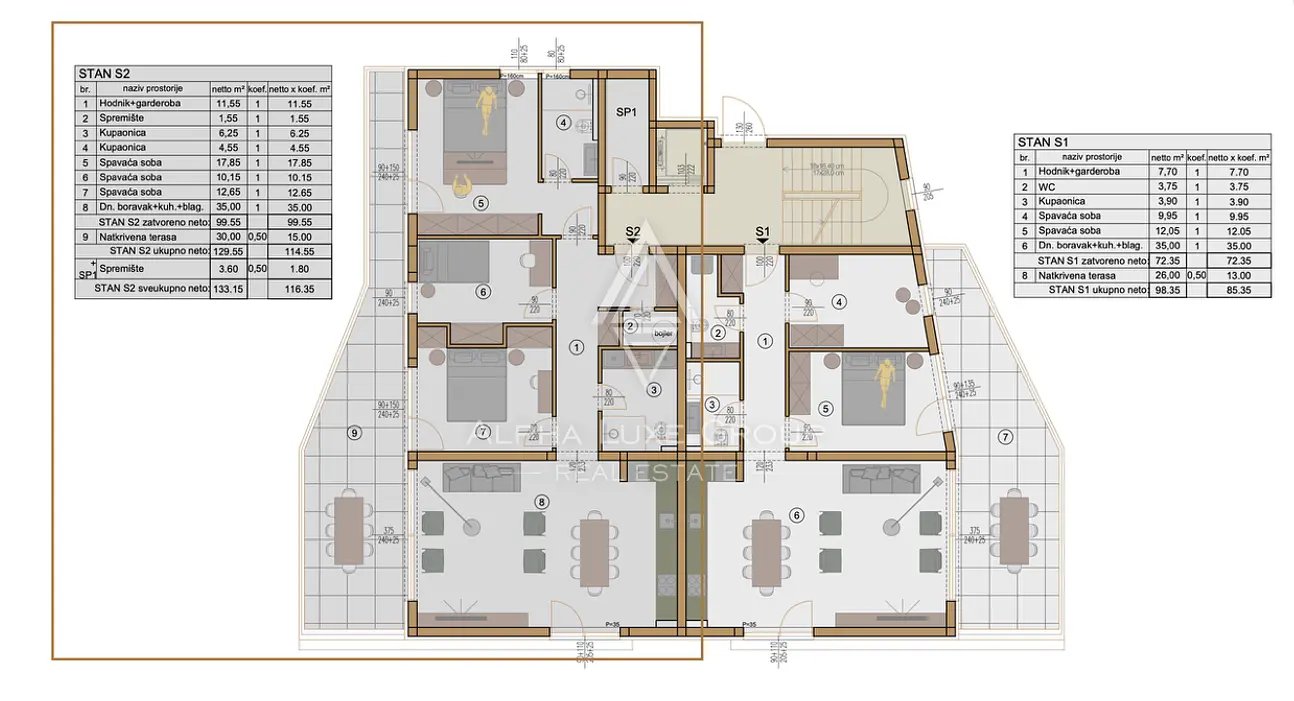
117 m²
Općina Medulin

místnosti4+1
plocha117 m²
koupelny2+
výtahAno
parkováníAno
stavOstatní
suterénNe
terasaAno

Popis

Smješten u jednoj od najpoželjnijih stambenih zona Pule, ovaj vrhunski stan u prizemlju dio je moderne luksuzne novogradnje udaljene svega 400 metara ...

Parametry

Vybavení & vlastnosti

Parametry

Vlastnictví:
Ostatní
Stav:
Ostatní
Typ budovy:
Ostatní
Typ vytápění:
Ostatní
Vybavení:
Ostatní
Stáří nabídky: 4 dní
Aktualizováno: 4 dní

Lokalita

Općina Medulin
Lokalita je orientační, neznáme přesnou adresu.

Občanská vybavenost

ALPHA LUXE GROUP REAL ESTATE


Marijana Budimir

Podobné inzeráty

Podobné v zahraničí