Prodej
Pronájem
Blog
O nás
+ Přidat nemovitost
Menu
Výpis nabídek
5
12 893 261 Kč
(109 265 Kč / m²)
Prodej
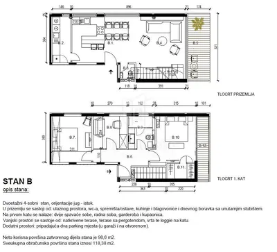
4+1
118 m²
Rovinj
Zobrazit na mapě
Do oblíbených
Sdílet
místnosti
4+1
plocha
118 m²
koupelny
1
výtah
Ne
parkování
Ne
stav
Ostatní
suterén
Ne
terasa
Ne
Popis
Přeložit do češtiny
Istra, Rovinj,
nedaleko od centra Rovinja u mirnoj ulici prodajemo ovaj stan u prizemlju nove zgrade. Kao prvak turizma Rovinj svojim gostima pruža n...
Zobrazit celý popis
Parametry
Vybavení & vlastnosti
Klimatizace
Vygenerováno z AI
Terasa
Otevřený obývací prostor
Podlaží
Parametry
Vlastnictví:
Ostatní
Stav:
Ostatní
Typ budovy:
Ostatní
Typ vytápění:
Ostatní
Vybavení:
Ostatní
Stáří nabídky:
416 dní
Aktualizováno:
229 dní
Nahlásit inzerát
Lokalita
Rovinj
Lokalita je orientační, neznáme přesnou adresu.
Požádat o přesnou adresu
Zvětšit mapu
Občanská vybavenost
Diamond Realestate
Tena Rojnić
Zobrazit E-mail
Zobrazit telefon
Kontaktovat prodejce
Diamond Realestate
Tena Rojnić
Zobrazit E-mail
Zobrazit telefon
Kontaktovat prodejce
Podobné inzeráty
|
Podobné v zahraničí
|
Prodej
Byty
Chorvatsko