Prodej
Pronájem
Developerské projekty
Blog
O nás
+ Přidat nemovitost
Přihlásit se
Menu
Výpis nabídek
12
12
12
4 128 269 Kč
(49 738 Kč / m²)
Prodej
Atypický
83 m²
Виолета Якова, София
Zobrazit na mapě
Do oblíbených
Sdílet
místnosti
Atypický
plocha
83 m²
koupelny
1
výtah
Ne
parkování
Ne
stav
Ostatní
suterén
Ne
terasa
Ne
Popis
Přeložit do češtiny
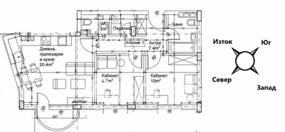
Тристайно ателие със застроена площ от 69,5 кв.м., състоящо се от входно антре, дневна с кухненски бокс, две спални, баня с тоалетна, отд...
Zobrazit celý popis
Parametry
Parametry
Vlastnictví:
Typ vlastnictví určuje právní vztah k nemovitosti – osobní, družstevní nebo státní/obecní.
Ostatní
Stav:
Aktuální stav nemovitosti z hlediska rekonstrukce – před, po, nebo v průběhu rekonstrukce.
Ostatní
Typ budovy:
Ostatní
Typ vytápění:
Ostatní
Vybavení:
Ostatní
Stáří nabídky:
114 dní
Aktualizováno:
68 dní
Nahlásit inzerát
Lokalita
Виолета Якова, София
Lokalita je orientační, neznáme přesnou adresu.
Požádat o přesnou adresu
Zvětšit mapu
Občanská vybavenost
АДРЕС НЕДВИЖИМИ ИМОТИ
Zobrazit telefon
Kontaktovat prodejce
АДРЕС НЕДВИЖИМИ ИМОТИ
Zobrazit telefon
Kontaktovat prodejce
Podobné inzeráty
Podobné v zahraničí
Prodej
Byty
Bulharsko
Kontaktovat prodejce