SUPA24
Obývací pokoj
Obývací pokoj
Obývací pokoj
2 969 058 Kč
(21 672 Kč / m²)
Prodej
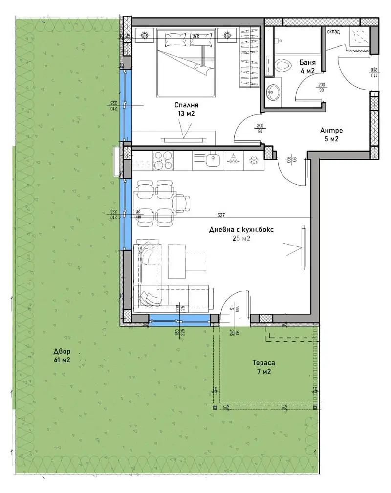
Atypický
137 m²
Царевец

místnostiAtypický
plocha137 m²
koupelny1
výtahNe
parkováníNe
stavOstatní
suterénNe
terasaNe

Popis

Оферта 68946 - БЕЗ КОМИСИОННА ОТ КУПУВАЧА!!! Представяме Ви изключителна възможност да притежавате дом в елегантна, модерна сграда разположена в район...

Parametry

Parametry

Vlastnictví:
Ostatní
Stav:
Ostatní
Typ budovy:
Ostatní
Typ vytápění:
Ostatní
Vybavení:
Ostatní
Stáří nabídky: 57 dní
Aktualizováno: 8 dní

Lokalita

Царевец
Lokalita je orientační, neznáme přesnou adresu.

Občanská vybavenost

КОНДОР - НЕДВИЖИМИ ИМОТИ


Podobné inzeráty

Podobné v zahraničí