SUPA24

GL
+0 km

Vendita e noleggio Malta

9839 risultati

Salva questa selezione

E ti invieremo subito una notifica sulle nuove offerte.

Successivo

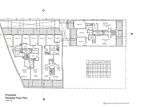
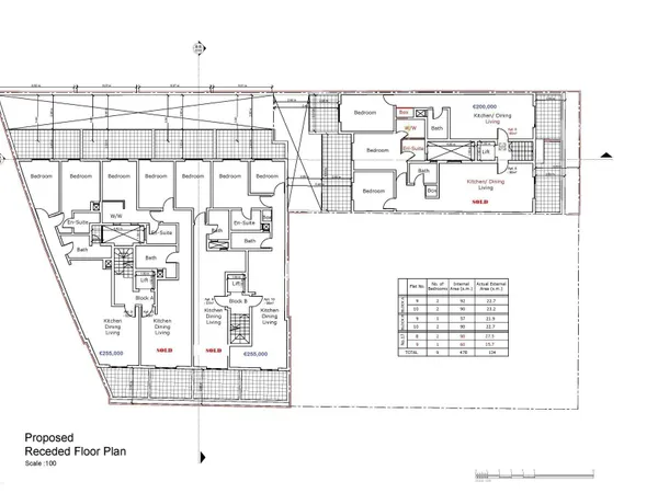
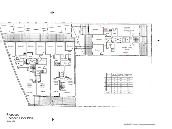
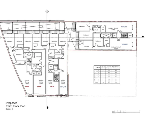
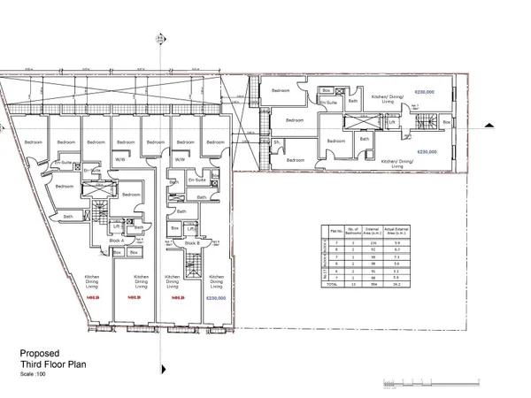
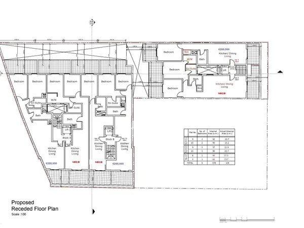
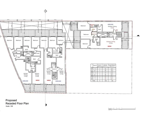
Il mercato immobiliare maltese offre opportunità uniche nel cuore del Mediterraneo. Valletta, Sliema e St. Julian's offrono appartamenti di lusso con vista sul mare, mentre Gozo attira con tranquillità e atmosfera autentica. Le case in vendita a Malta spesso combinano elementi storici con uno stile moderno. Grazie a condizioni fiscali favorevoli e al clima soleggiato tutto l'anno, Malta è attraente sia per gli investitori che per coloro che cercano una seconda casa sul mare. La vita sull'isola qui significa comodità, sicurezza e tranquillità mediterranea.