Sale
Lease
Blog
About us
+ Add property
Menu
List of offers
10
10
10
3 250 589 AED
(27 783 AED / m²)
Sale
Atypical
2+
117 m²
Show on map
Add to favorites
Share
bedroom
atypical
flat
117 m²
bathrooms
2+
lift
Yes
parking
No
state
Other
basement
No
terrace
Yes
Description
Translate to English
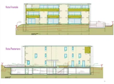
Moderna ed elegante nuova residenza comprende sei appartamenti di prossima costruzione nel Comune di Arbedo, l'appartamento 4,5 locali al piano terra ...
Show full description
Parameters
Equipment & features
Lift
Parameters
Ownership:
Other
State:
Other
building type:
Other
Heating type:
Other
Equipment:
Other
Age of the offer:
303days
Updated:
303days
Report ad
Localities
The location is approximate, we do not know the exact address.
Request exact address
Enlarge map
Civic amenities
Ebuyhouse Real Estate
Show phone
Contact seller
Ebuyhouse Real Estate
Show phone
Contact seller
Similar ads
|
Similar abroad
|
Sale
Apartments
Switzerland