Sale
Rent
Blog
About us
+ Add Property
Menu
Listing of Offers
333 641 AED
(8 341 AED / m²)
Sale
Atypical
1
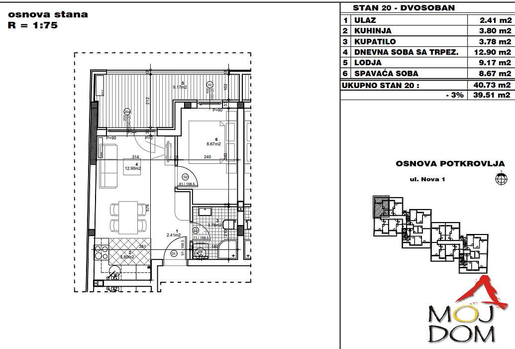
40 m²
PETROVARADIN, PETROVARADIN
Show on Map
Add to Favorites
Share
bedroom
0
area
40 m²
bathrooms
1
lift
No
parking
No
state
Others
basement
No
terrace
No
Description
Translate to English
Petrovaradin! Vaš mali raj čeka samo na Vas!
Ušuškan, komforan stan, skladnog rasporeda u zgradi koju gradi pouzdan investitor nalaze se u mirnom kraj...
Show full description
Parameters
Parameters
Ownership:
Others
State:
Others
Building Type:
Others
Heating Type:
Gas
Furnished:
Others
Show all parameters
Offer Age:
285 days
Updated:
284 days
Report ad
Location
PETROVARADIN, PETROVARADIN
The location is approximate, the exact address is unknown.
Request precise address
Enlarge map
Civic amenities
MOJ DOM - AGENCIJA ZA NEKRETNINE
Dragana Zorić
Show Email
Show phone
Contact Seller
MOJ DOM - AGENCIJA ZA NEKRETNINE
Dragana Zorić
Show Email
Show phone
Contact Seller
Similar listings
|
Similar Abroad
|
Sale
Apartments
Serbia