Sale
Lease
Blog
About us
+ Add property
Menu
List of offers
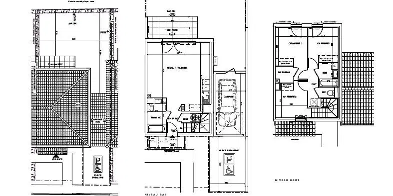
5
2 144 117 AED
(26 148 AED / m²)
Sale
3
2+
82 m²
Impasse du Volcan, Cogolin
Show on map
Add to favorites
Share
bedroom
3
flat
82 m²
bathrooms
2+
lift
No
parking
No
state
Other
basement
No
terrace
No
Description
Translate to English
DISCOVER THE NEW VILLAS OF COGOLIN, NEAR THE GULF OF SAINT-TROPEZ
Just a 5-minute drive from Cogolin town center and 12 minutes from the port and beac...
Show full description
Parameters
Parameters
Ownership:
Other
State:
Other
building type:
Other
Heating type:
Other
Equipment:
Other
Age of the offer:
18days
Updated:
18days
Report ad
Localities
Impasse du Volcan, Cogolin
The location is approximate, we do not know the exact address.
Request exact address
Enlarge map
Civic amenities
Living on the Côte d'Azur
Ab Kuijer
Show Email
Show phone
Contact seller
Living on the Côte d'Azur
Ab Kuijer
Show Email
Show phone
Contact seller
Similar ads
Similar abroad
Sale
Apartments
France