Sale
Rent
Blog
About us
+ Add Property
Menu
Listing of Offers
7
7
7
2 393 506 AED
(23 698 AED / m²)
Sale
filters.disposition_4
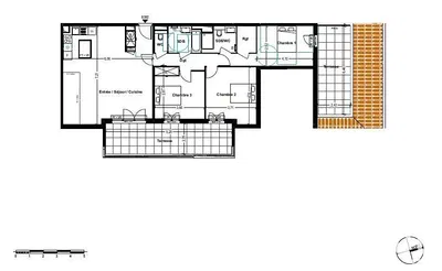
1
101 m²
COGOLIN
Show on Map
Add to Favorites
Share
bedroom
4
area
101 m²
bathrooms
1
lift
Yes
parking
No
state
Others
basement
No
terrace
Yes
Description
Translate to English
iad France - Alexandre Rachel (07 83 42 76 10) vous propose : Résidence à Cogolin – Appartements T4 Cette petite résidence de deux bâtiments est situé...
Show full description
Parameters
Equipment & Features
Elevator
Generated from AI
Terrace
Floor tile
Security
Natural light
Parameters
Ownership:
Others
State:
Others
Building Type:
Others
Heating Type:
Others
Furnished:
Others
Offer Age:
4 days
Updated:
2 days
Report ad
Location
COGOLIN
The location is approximate, the exact address is unknown.
Request precise address
Enlarge map
Civic amenities
IAD France
Show phone
Contact Seller
IAD France
Show phone
Contact Seller
Similar listings
|
Similar Abroad
|
Sale
Apartments
France