Sale
Rent
Blog
About us
+ Add Property
Menu
Listing of Offers
4
4
462 758 AED
(25 709 AED / m²)
Sale
1
1
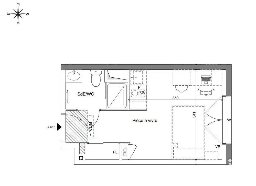
18 m²
LA VALETTE-DU-VAR
Show on Map
Add to Favorites
Share
bedroom
1
area
18 m²
bathrooms
1
lift
No
parking
No
state
Others
basement
No
terrace
No
Description
Translate to English
iad France - Guillaume Sueur (06 10 35 64 71) vous propose : Studio étudiant à TOULON - LA VALETTEProduit d'investissementStud’Avenue bénéficie d’un e...
Show full description
Parameters
Parameters
Ownership:
Others
State:
Others
Building Type:
Others
Heating Type:
Others
Furnished:
Others
Offer Age:
289 days
Updated:
18 days
Report ad
Location
LA VALETTE-DU-VAR
The location is approximate, the exact address is unknown.
Request precise address
Enlarge map
Civic amenities
IAD France
Show phone
Contact Seller
IAD France
Show phone
Contact Seller
Similar listings
|
Similar Abroad
|
Sale
Apartments
France