Sale
Rent
Blog
About us
+ Add Property
Menu
Listing of Offers
10
10
10
1 767 269 AED
(14 727 AED / m²)
Sale
3
2+
120 m²
Privlaka
Show on Map
Add to Favorites
Share
bedroom
1
area
120 m²
bathrooms
2+
lift
No
parking
No
state
Others
basement
No
terrace
Yes
Description
Translate to English
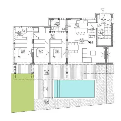
U Privlaci se gradi luksuzna zgrada sa 6 apartmana. Nekretnina se nalazi na izvrsnoj lokaciji, drugi red do mora, cca 70 metara. Ima prekrasan pogled ...
Show full description
Parameters
Equipment & Features
Air Conditioning
Parameters
Ownership:
Others
State:
Others
Building Type:
Others
Heating Type:
Others
Furnished:
Others
Offer Age:
830 days
Updated:
101 days
Report ad
Location
Privlaka
The location is approximate, the exact address is unknown.
Request precise address
Enlarge map
Civic amenities
Euro Immobilen d. o. o.
Dora R
Show Email
Show phone
Contact Seller
Euro Immobilen d. o. o.
Dora R
Show Email
Show phone
Contact Seller
Similar listings
|
Similar Abroad
|
Sale
Apartments
Croatia