Sale
Lease
Blog
About us
+ Add property
Menu
List of offers
10
10
10
2 389 AED
(13 AED / m²)
Lease
1
1
190 m²
Show on map
Add to favorites
Share
bedroom
1
flat
190 m²
bathrooms
1
lift
No
parking
No
state
Other
basement
No
terrace
No
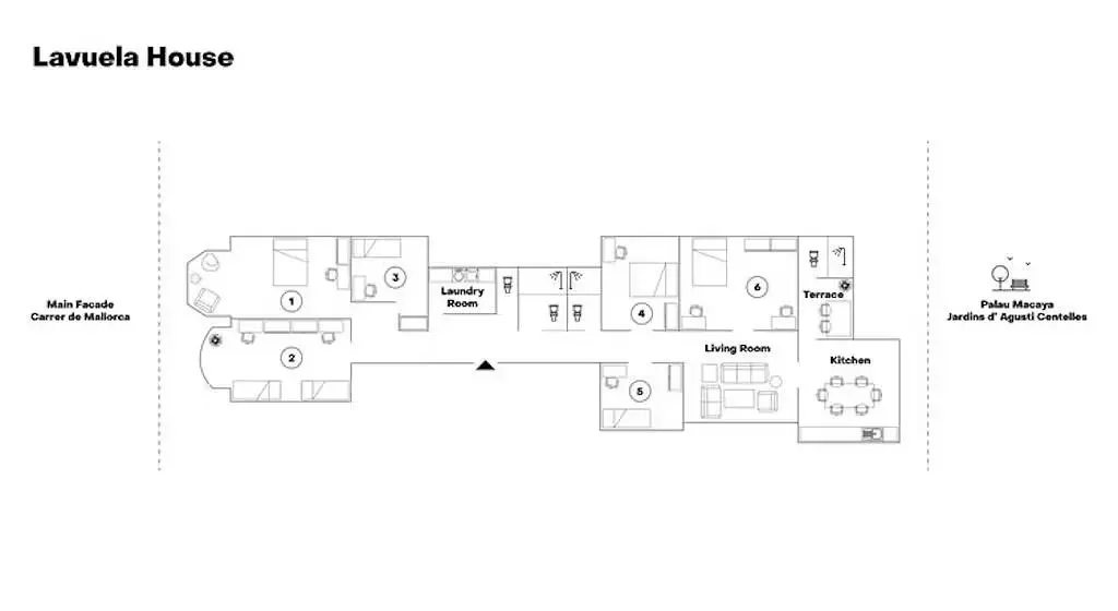
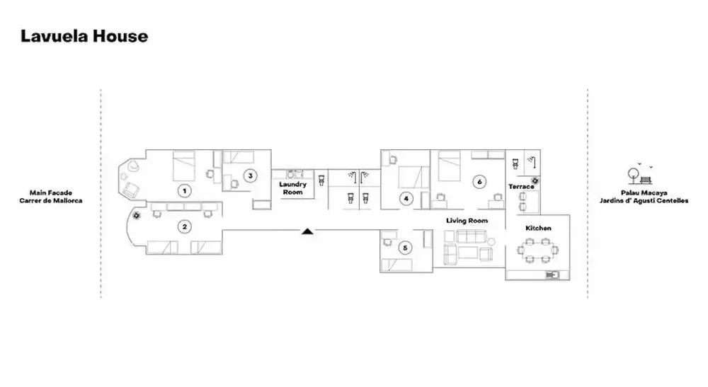
Description
Translate to English
For more details, please visit https://housinganywhere.com/room/ut1665590/es/Barcelona/carrer-de-mallorca?utm_medium=affiliate&utm_source=list_globall...
Show full description
Parameters
Parameters
Ownership:
Other
State:
Other
building type:
Other
Heating type:
Electric
Equipment:
furnished
Age of the offer:
46days
Updated:
1days
Report ad
Localities
The location is approximate, we do not know the exact address.
Request exact address
Enlarge map
Civic amenities
HousingAnywhere
Show phone
Contact seller
HousingAnywhere
Show phone
Contact seller
Similar ads
|
Similar abroad
|
Rent
Apartments
Spain