SUPA24
Dnevna soba
Dnevna soba
Dnevna soba
15 471 558 BAM
(31 769 BAM / m²)
Rasprodaja
6+
1
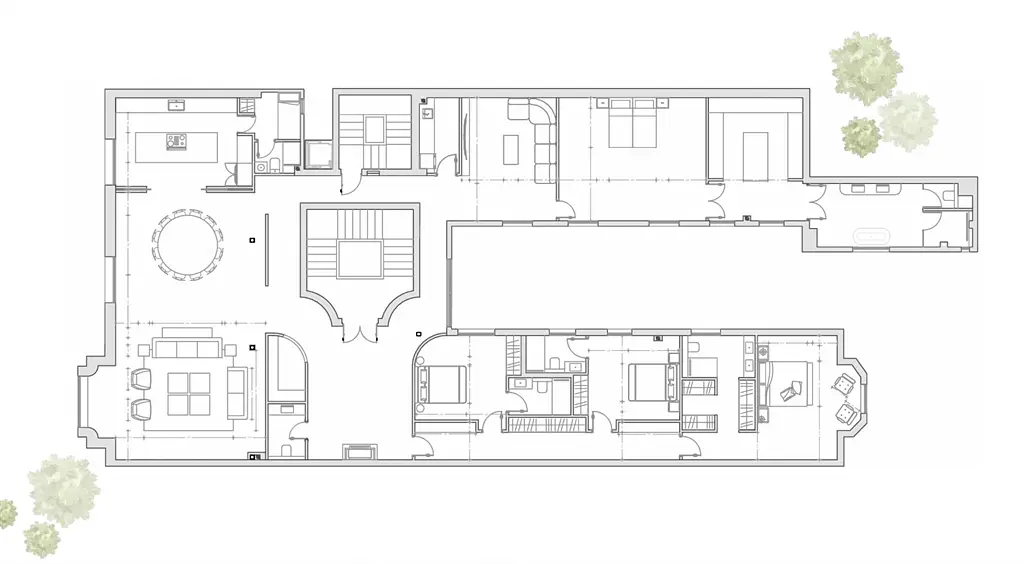
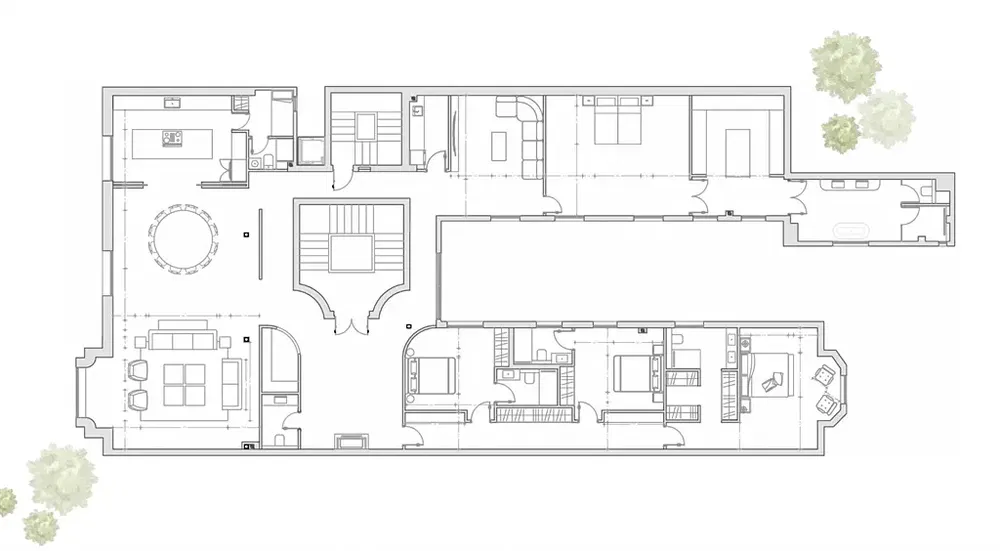
487 m²
CALLE LAGASCA, Madrid

spavaća soba6+
stan487 m²
kupaonice1
liftDa
parkingNe
državaOstalo
podrumNe
terasaNe

Opis

Live on the prestigious Calle Ayala in this 487 m² residence, the perfect harmony between classic architecture and contemporary design. Just a few ste...

Parametri

Oprema i karakteristike

Generisano od strane vještačke inteligencije

Otvoreni životni prostorPrirodno svjetloDrveni podNamješten

Parametri

Vlasništvo:
Ostalo
država:
Ostalo
tip zgrade:
Ostalo
Vrsta grijanja:
Ostalo
Oprema:
namješten
Starost ponude: 69dana
Ažurirano: 33dana

Lokaliteti

CALLE LAGASCA, Madrid
Lokacija je približna, ne znamo tačnu adresu.

Građanske pogodnosti

KRETZ SPAIN


Slični oglasi

Slično u inostranstvu