Prodaja
Najam
Blog
O nama
+ Dodaj nekretninu
Meni
Pregled ponuda
35
35
35
615 484 BAM
(7 993 BAM / m²)
Prodaja
Atipično
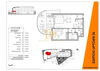
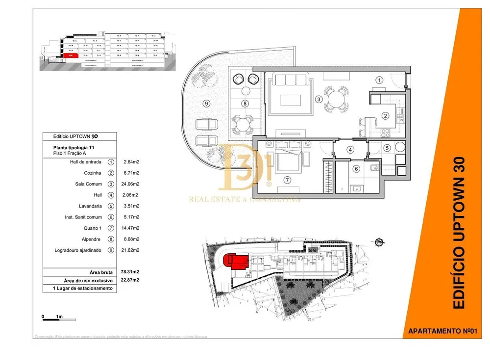
1
77 m²
Machico, Madeira
Prikaži na karti
U omiljene
Podijeli
spavaća soba
atypical
površina
77 m²
kupatilo
1
lift
Ne
parking
Ne
stanje
Nova zgrada
podrum
Ne
teras
Ne
Opis
Prevedi na engleski
One-bedroom apartment located in the new UPTOWN 30 building, in Machico, on the beautiful island of Madeira.
With spacious layouts, modern design, an...
Prikaži puni opis
Parametri
Parametri
Vlasništvo:
Ostali
Stanje:
Nova zgrada
Vrsta zgrade:
Ostali
Tip grijanja:
Ostali
Namještaj:
Ostali
Starost ponude:
2 dana
Ažurirano:
2 dana
Prijavi oglas
Lokacija
Machico, Madeira
Lokacija je okvirna, ne znamo tačnu adresu.
Zatraži tačnu adresu
Povećaj kartu
Civlna opremljenost
AUGE MÁGICO UNIPESSOAL LDA
Prikazati telefon
Kontaktirati prodavača
AUGE MÁGICO UNIPESSOAL LDA
Prikazati telefon
Kontaktirati prodavača
Slični oglasi
|
Slično u inostranstvu
|
Prodaja
Stanovi
Portugal