Rasprodaja
Zakup
Blog
O nama
+ Dodaj svojstvo
Meni
Lista ponuda
8
8
8
367 344 BAM
(3 787 BAM / m²)
Rasprodaja
4
1
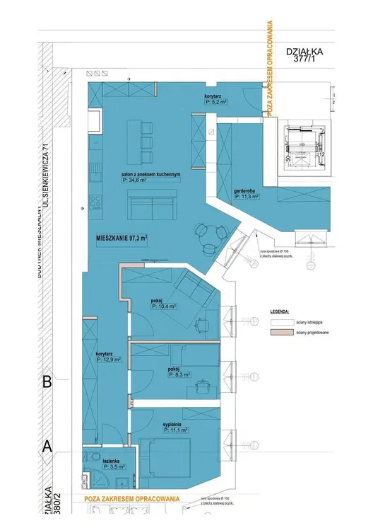
97 m²
Nawrot, Łódź
Prikaži na mapi
Dodaj u favorite
Podijeli
spavaća soba
4
stan
97 m²
kupaonice
1
lift
Ne
parking
Ne
država
podrum
Ne
terasa
Ne
Opis
Prevedi na Engleski
Mieszkanie w stanie deweloperskim położone w oficynie kamienicy Józefa Pfeiffera z 1886 r.. Budynek znajduje się 200 m od ul. Piotrkowskiej, przy ul....
Prikaži puni opis
Parametri
Parametri
Vlasništvo:
Lično
tip zgrade:
Cigla
Vrsta grijanja:
Ostalo
Oprema:
Ostalo
Starost ponude:
2dana
Ažurirano:
1dana
Prijavi oglas
Lokaliteti
Nawrot, Łódź
Lokacija je približna, ne znamo tačnu adresu.
Zatražite tačnu adresu
Uvećaj mapu
Građanske pogodnosti
Metr Kwadratowy
Joanna Laszok
Prikaži e-poštu
Prikaži telefon
Kontaktirajte prodavca
Metr Kwadratowy
Joanna Laszok
Prikaži e-poštu
Prikaži telefon
Kontaktirajte prodavca
Slični oglasi
|
Slično u inostranstvu
|
Prodaja
Stanovi
Poljska