Prodaja
Najam
Blog
O nama
+ Dodaj nekretninu
Meni
Pregled ponuda
16
16
16
1 297 601 BAM
(12 242 BAM / m²)
Prodaja
filters.disposition_4
1
106 m²
Wrocław
Prikaži na karti
U omiljene
Podijeli
spavaća soba
4
površina
106 m²
kupatilo
1
lift
Ne
parking
Ne
stanje
podrum
Ne
teras
Ne
Opis
Prevedi na engleski
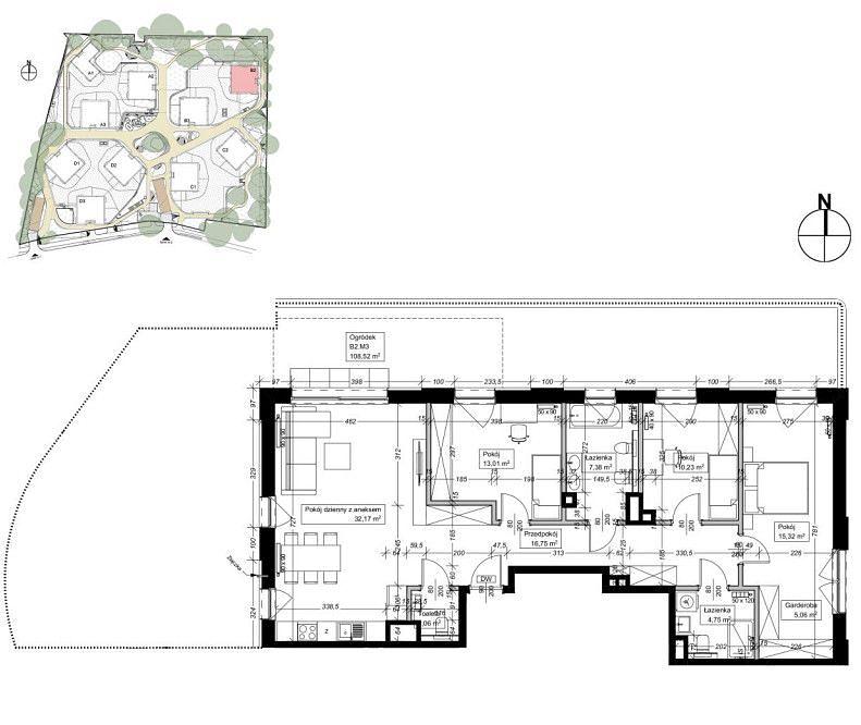
4 POKOJE | BEZPOŚREDNIO OD DEWELOPERA | OGRÓD | PRZY PARKURozkład mieszkania:
- salon z aneksem kuchennym - sypialnia główna z garderobą- łazienka- s...
Prikaži puni opis
Parametri
Parametri
Vlasništvo:
Ostali
Tip grijanja:
Ostali
Namještaj:
Ostali
Starost ponude:
417 dana
Ažurirano:
417 dana
Prijavi oglas
Lokacija
Wrocław
Lokacija je okvirna, ne znamo tačnu adresu.
Zatraži tačnu adresu
Povećaj kartu
Civlna opremljenost
Le Premier Nieruchomości
Bartłomiej Zemlak
Prikaži E-mail
Prikazati telefon
Kontaktirati prodavača
Le Premier Nieruchomości
Bartłomiej Zemlak
Prikaži E-mail
Prikazati telefon
Kontaktirati prodavača
Slični oglasi
|
Slično u inostranstvu
|
Prodaja
Stanovi
Poljska