Prodaja
Najam
Blog
O nama
+ Dodaj nekretninu
Meni
Pregled ponuda
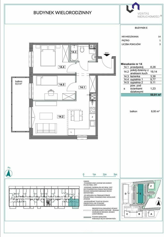
5
208 833 BAM
(4 177 BAM / m²)
Prodaja
3
1
50 m²
Kościuszki, Chorzów
Prikaži na karti
U omiljene
Podijeli
spavaća soba
3
površina
50 m²
kupatilo
1
lift
Ne
parking
Ne
stanje
podrum
Ne
teras
Ne
Opis
Prevedi na engleski
NOWA INWESTYCJA W CHORZOWIE PRZY UL. KOŚCIUSZKI, BLIKO PARKU ŚLĄSKIEGO - ZAREZERWUJ SWOJE MIESZKANIE! W pierwszym etapie, który właśnie trafił do prz...
Prikaži puni opis
Parametri
Oprema & karakteristike
Internet
Parametri
Vlasništvo:
Ostali
Tip grijanja:
Centralno daljinsko
Namještaj:
Ostali
Starost ponude:
850 dana
Ažurirano:
66 dana
Prijavi oglas
Lokacija
Kościuszki, Chorzów
Lokacija je okvirna, ne znamo tačnu adresu.
Zatraži tačnu adresu
Povećaj kartu
Civlna opremljenost
VERITAS
Leszek Czura
Prikaži E-mail
Prikazati telefon
Kontaktirati prodavača
VERITAS
Leszek Czura
Prikaži E-mail
Prikazati telefon
Kontaktirati prodavača
Slični oglasi
|
Slično u inostranstvu
|
Prodaja
Stanovi
Poljska