Prodaja
Najam
Blog
O nama
+ Dodaj nekretninu
Meni
Pregled ponuda
5
5
5
279 245 BAM
(7 547 BAM / m²)
Prodaja
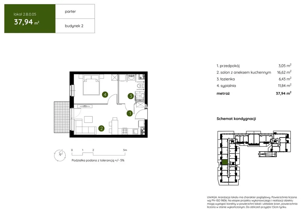
2
1
37 m²
Pękowicka, Kraków
Prikaži na karti
U omiljene
Podijeli
spavaća soba
0
površina
37 m²
kupatilo
1
lift
Ne
parking
Ne
stanje
podrum
Ne
teras
Ne
Opis
Prevedi na engleski
Z ogromną przyjemnością przedstawiamy Państwu ofertę mieszkania na sprzedaż w malowniczym rejonie Doliny Prądnika, na północy Krakowa, blisko granicy...
Prikaži puni opis
Parametri
Oprema & karakteristike
Internet
Parametri
Vlasništvo:
Ostali
Vrsta zgrade:
Ostali
Tip grijanja:
Ostali
Namještaj:
Ostali
Starost ponude:
23 dana
Ažurirano:
5 dana
Prijavi oglas
Lokacija
Pękowicka, Kraków
Lokacija je okvirna, ne znamo tačnu adresu.
Zatraži tačnu adresu
Povećaj kartu
Civlna opremljenost
BRACIA SADURSCY
Patrycja Rubinkiewicz
Prikaži E-mail
Prikazati telefon
Kontaktirati prodavača
BRACIA SADURSCY
Patrycja Rubinkiewicz
Prikaži E-mail
Prikazati telefon
Kontaktirati prodavača
Slični oglasi
|
Slično u inostranstvu
|
Sale
Apartments
Poljska