Rasprodaja
Zakup
Blog
O nama
+ Dodaj svojstvo
Meni
Lista ponuda
5
410 055 BAM
(6 614 BAM / m²)
Rasprodaja
4
1
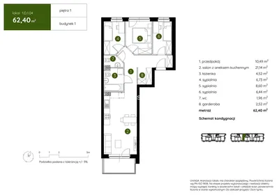
62 m²
Prikaži na mapi
Dodaj u favorite
Podijeli
spavaća soba
4
stan
62 m²
kupaonice
1
lift
Ne
parking
Ne
država
podrum
Ne
terasa
Ne
Opis
Prevedi na Engleski
Z ogromną przyjemnością przedstawiamy Państwu ofertę mieszkania na sprzedaż w malowniczym rejonie Doliny Prądnika, na północy Krakowa, blisko granicy...
Prikaži puni opis
Parametri
Oprema i karakteristike
Internet
Parametri
Vlasništvo:
Ostalo
tip zgrade:
Ostalo
Vrsta grijanja:
Ostalo
Oprema:
Ostalo
Starost ponude:
77dana
Ažurirano:
59dana
Prijavi oglas
Lokaliteti
Lokacija je približna, ne znamo tačnu adresu.
Zatražite tačnu adresu
Uvećaj mapu
Građanske pogodnosti
BRACIA SADURSCY
Patrycja Rubinkiewicz
Prikaži e-poštu
Prikaži telefon
Kontaktirajte prodavca
BRACIA SADURSCY
Patrycja Rubinkiewicz
Prikaži e-poštu
Prikaži telefon
Kontaktirajte prodavca
Slični oglasi
|
Slično u inostranstvu
|
Prodaja
Stanovi
Poljska