Prodaja
Najam
Blog
O nama
+ Dodaj nekretninu
Meni
Pregled ponuda
1
1
616 923 BAM
(5 508 BAM / m²)
Prodaja
2
2+
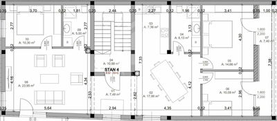
112 m²
Pula, Veli Vrh
Prikaži na karti
U omiljene
Podijeli
spavaća soba
2
površina
112 m²
kupatila
2+
lift
Ne
parking
Da
stanje
Ostali
podrum
Ne
teras
Ne
Opis
Prevedi na engleski
Na jugu Istarskog poluotoka smjestio se najpovjesniji i najveći grad Istarske županije, grad Pula. Grad Pula kao destinaciju za život ili poslovanje o...
Prikaži puni opis
Parametri
Parametri
Vlasništvo:
Ostali
Stanje:
Ostali
Vrsta zgrade:
Ostali
Tip grijanja:
Podno
Namještaj:
Ostali
Starost ponude:
596 dana
Ažurirano:
451 dana
Prijavi oglas
Lokacija
Pula, Veli Vrh
Lokacija je okvirna, ne znamo tačnu adresu.
Zatraži tačnu adresu
Povećaj kartu
Civlna opremljenost
G.M.D. nekretnine d.o.o.
Giuseppe Janko
Prikaži E-mail
Prikazati telefon
Kontaktirati prodavača
G.M.D. nekretnine d.o.o.
Giuseppe Janko
Prikaži E-mail
Prikazati telefon
Kontaktirati prodavača
Slični oglasi
|
Slično u inostranstvu
|
Prodaja
Stanovi
Hrvatska