SUPA24
Dnevna soba
Dnevna soba
Dnevna soba
Dnevna soba
Dnevna soba
841 202 BAM
(17 525 BAM / m²)
Rasprodaja
2
1
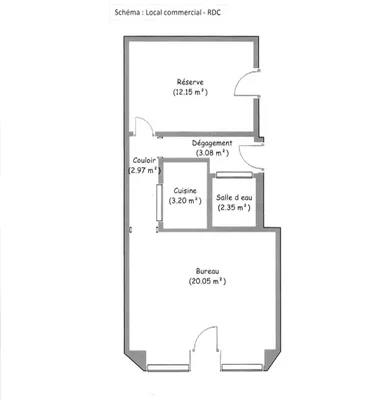
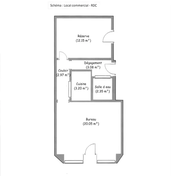
48 m²
Rue Pouchet, Paris

spavaća soba2
stan48 m²
kupaonice1
liftNe
parkingNe
državaOstalo
podrumNe
terasaNe

Opis

iad France - Stéphanie Foulquier vous propose: *** Métro BROCHANT - BATIGNOLLES / 82 rue Lemercier - Rue Clairaut : Anciennement local de bureaux en R...

Parametri

Parametri

Vlasništvo:
Ostalo
država:
Ostalo
Energetski intenzitet:
E - Neekonomično
tip zgrade:
Ostalo
Vrsta grijanja:
Ostalo
Starost ponude: 5dana
Ažurirano: 5dana

Lokaliteti

Rue Pouchet, Paris
Lokacija je približna, ne znamo tačnu adresu.

Građanske pogodnosti

IAD France


Slični oglasi

Slično u inostranstvu