Prodej
Pronájem
Blog
O nás
+ Přidat nemovitost
Menu
Výpis nabídek
5
113 258 BAM
(3 905 BAM / m²)
Prodej
1
1
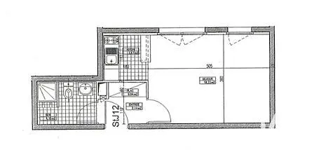
29 m²
Rue de Veyrac, Limoges
Zobrazit na mapě
Do oblíbených
Sdílet
ložnice
1
plocha
29 m²
koupelny
1
výtah
Ano
parkování
Ne
stav
Ostatní
suterén
Ne
terasa
Ne
Popis
Přeložit do angličtiny
iad France - Ludovic Merigaud vous propose: NOUVEAUTÉ – Studio avec ascenseur, parking et cave – Idéal investisseur ✨Situé au premier étage d’une rési...
Zobrazit celý popis
Parametry
Vybavení & vlastnosti
Výtah
Parametry
Vlastnictví:
Ostatní
Stav:
Ostatní
Energetická náročnost:
C - Úsporná
Typ budovy:
Ostatní
Typ vytápění:
Ostatní
Zobrazit všechny parametry
Stáří nabídky:
1 dní
Aktualizováno:
1 dní
Nahlásit inzerát
Lokalita
Rue de Veyrac, Limoges
Lokalita je orientační, neznáme přesnou adresu.
Požádat o přesnou adresu
Zvětšit mapu
Občanská vybavenost
IAD France
Zobrazit telefon
Kontaktovat prodejce
IAD France
Zobrazit telefon
Kontaktovat prodejce
Podobné inzeráty
|
Podobné v zahraničí
|
Prodaja
Stanovi
Francuska