Rasprodaja
Zakup
Blog
O nama
+ Dodaj svojstvo
Meni
Lista ponuda
7
7
7
492 291 BAM
(9 653 BAM / m²)
Rasprodaja
3
1
51 m²
Rue Henri Carrière, Fleury
Prikaži na mapi
Dodaj u favorite
Podijeli
spavaća soba
3
stan
51 m²
kupaonice
1
lift
Ne
parking
Ne
država
Ostalo
podrum
Ne
terasa
Ne
Opis
Prevedi na Engleski
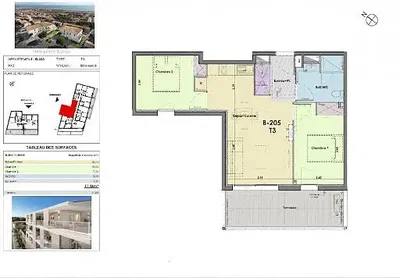
Dans une résidence prisée à l'emplacement n°1, découvrez ce T3 de 51 m², idéalement situé à 10 minutes à pied des plages.
L'appartement comprend :
Une...
Prikaži puni opis
Parametri
Parametri
Vlasništvo:
Ostalo
država:
Ostalo
tip zgrade:
Ostalo
Vrsta grijanja:
Ostalo
Oprema:
Ostalo
Starost ponude:
8dana
Ažurirano:
8dana
Prijavi oglas
Lokaliteti
Rue Henri Carrière, Fleury
Lokacija je približna, ne znamo tačnu adresu.
Zatražite tačnu adresu
Uvećaj mapu
Građanske pogodnosti
Propriétés Privées
Prikaži telefon
Kontaktirajte prodavca
Propriétés Privées
Prikaži telefon
Kontaktirajte prodavca
Slični oglasi
|
Slično u inostranstvu
|
Prodaja
Stanovi
Francuska