Rasprodaja
Zakup
Blog
O nama
+ Dodaj svojstvo
Meni
Lista ponuda
4
4
1 699 690 BAM
(16 829 BAM / m²)
Rasprodaja
3
1
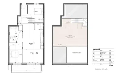
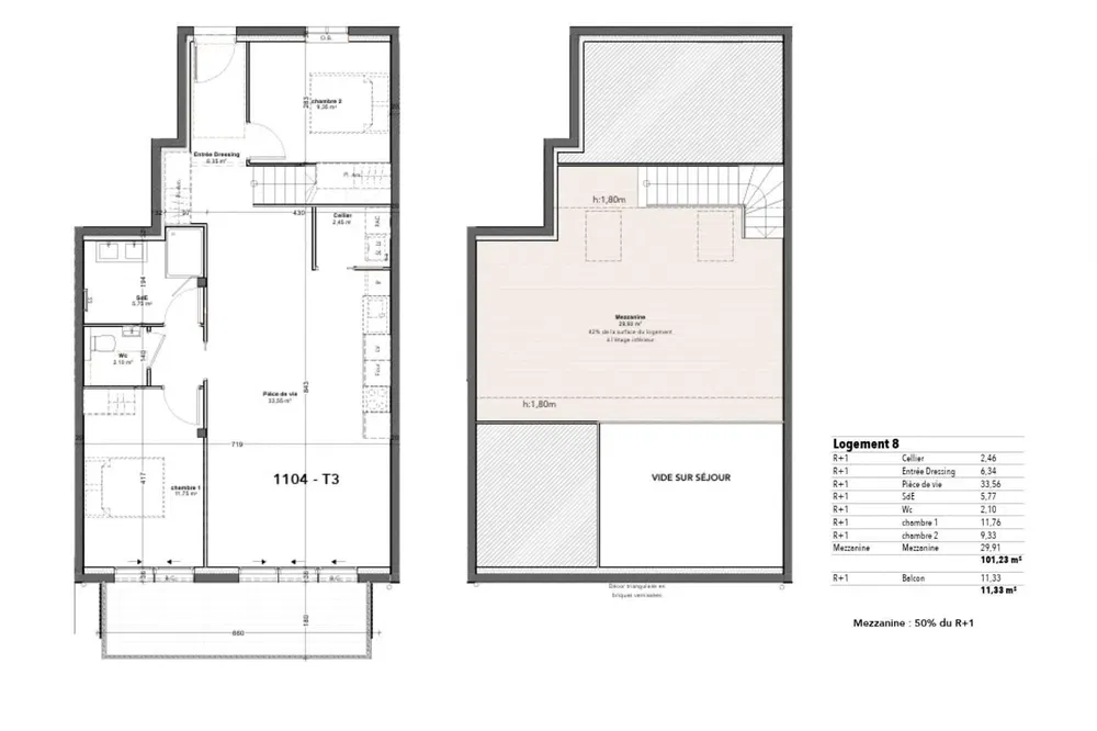
101 m²
Allée de Montmeillant, Châtelaillon-Plage
Prikaži na mapi
Dodaj u favorite
Podijeli
spavaća soba
3
stan
101 m²
kupaonice
1
lift
Da
parking
Ne
država
Ostalo
podrum
Ne
terasa
Ne
Opis
Prevedi na Engleski
iad France - Amélie Davin (06 50 71 40 30) vous propose : UNE ADRESSE UNIQUE, UN EMPLACEMENT EXCEPTIONNEL FACE A LA GRANDE PLAGE DE CHATELAILLON-PLAGE...
Prikaži puni opis
Parametri
Oprema i karakteristike
Lift
Parametri
Vlasništvo:
Ostalo
država:
Ostalo
tip zgrade:
Ostalo
Vrsta grijanja:
Ostalo
Oprema:
Ostalo
Starost ponude:
7dana
Ažurirano:
7dana
Prijavi oglas
Lokaliteti
Allée de Montmeillant, Châtelaillon-Plage
Lokacija je približna, ne znamo tačnu adresu.
Zatražite tačnu adresu
Uvećaj mapu
Građanske pogodnosti
IAD France
Prikaži telefon
Kontaktirajte prodavca
IAD France
Prikaži telefon
Kontaktirajte prodavca
Slični oglasi
|
Slično u inostranstvu
|
Prodaja
Stanovi
Francuska