Rasprodaja
Zakup
Blog
O nama
+ Dodaj svojstvo
Meni
Lista ponuda
11
11
11
416 639 BAM
(7 575 BAM / m²)
Rasprodaja
3
1
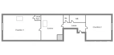
55 m²
Chemin du Port Meslet, Angers
Prikaži na mapi
Dodaj u favorite
Podijeli
spavaća soba
3
stan
55 m²
kupaonice
1
lift
Ne
parking
Ne
država
Ostalo
podrum
Ne
terasa
Ne
Opis
Prevedi na Engleski
iad France - Manon Coudray vous propose: À découvrir – Appartement T3 Place Bichon, Angers. Libre de toute occupation en juin 2026Idéalement situé Pla...
Prikaži puni opis
Parametri
Parametri
Vlasništvo:
Ostalo
država:
Ostalo
Energetski intenzitet:
D - Manje ekonomično
tip zgrade:
Ostalo
Vrsta grijanja:
Ostalo
Prikaži sve parametre
Starost ponude:
46dana
Ažurirano:
2dana
Prijavi oglas
Lokaliteti
Chemin du Port Meslet, Angers
Lokacija je približna, ne znamo tačnu adresu.
Zatražite tačnu adresu
Uvećaj mapu
Građanske pogodnosti
IAD France
Prikaži telefon
Kontaktirajte prodavca
IAD France
Prikaži telefon
Kontaktirajte prodavca
Slični oglasi
|
Slično u inostranstvu
|
Prodaja
Stanovi
Francuska