Rasprodaja
Zakup
Blog
O nama
+ Dodaj svojstvo
Meni
Lista ponuda
6
6
6
470 287 BAM
(2 868 BAM / m²)
Rasprodaja
3
1
164 m²
Jungmannova, Teplice
Prikaži na mapi
Dodaj u favorite
Podijeli
spavaća soba
3
stan
164 m²
kupaonice
1
lift
Ne
parking
Ne
država
Ostalo
podrum
Ne
terasa
Ne
Opis
Prevedi na Engleski
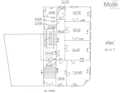
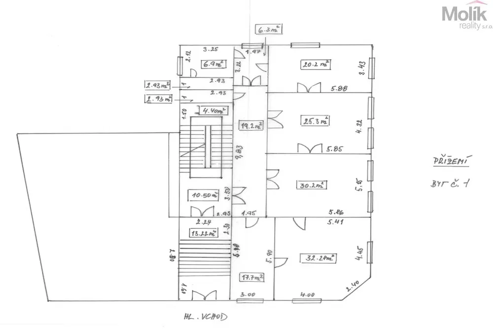
Nabízíme na prodej byt 3+1 v osobním vlastnictví.
Byt se nachází v přízemí (1.NP) historického bytového domu v lázeňské části Teplic, ul. Jungmannova...
Prikaži puni opis
Parametri
Parametri
Vlasništvo:
Lično
država:
Ostalo
tip zgrade:
Cigla
Vrsta grijanja:
Ostalo
Oprema:
Nenamješteno
Prikaži sve parametre
Starost ponude:
1dana
Ažurirano:
1dana
Prijavi oglas
Lokaliteti
Jungmannova, Teplice
Lokacija je približna, ne znamo tačnu adresu.
Zatražite tačnu adresu
Uvećaj mapu
Građanske pogodnosti
Molík reality s.r.o.
Radek Molík
Prikaži e-poštu
Prikaži telefon
Kontaktirajte prodavca
Molík reality s.r.o.
Radek Molík
Prikaži e-poštu
Prikaži telefon
Kontaktirajte prodavca
Slični oglasi
|
Slično u inostranstvu
|
Prodaja
Stanovi
Czechia
Teplice