SUPA24
Dnevna soba
Dnevna soba
Dnevna soba
Dnevna soba
Dnevna soba
1 195 BAM
(6 BAM / m²)
Zakup
1
1
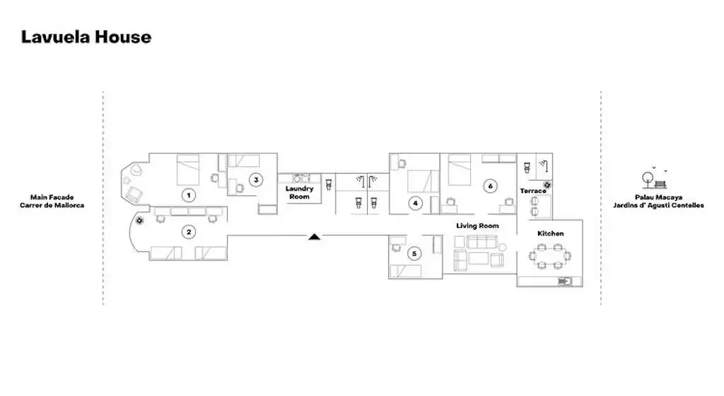
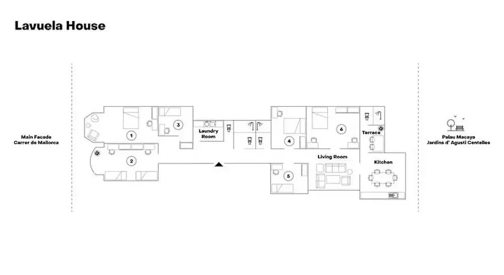
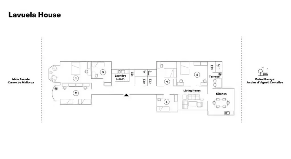
190 m²
Carrer de Mallorca, Barcelona

spavaća soba1
stan190 m²
kupaonice1
liftNe
parkingNe
državaOstalo
podrumNe
terasaNe

Opis

For more details, please visit https://housinganywhere.com/room/ut1665566/es/Barcelona/carrer-de-mallorca?utm_content=Barcelona&utm_medium=affiliate&u...

Parametri

Parametri

Vlasništvo:
Ostalo
država:
Ostalo
tip zgrade:
Ostalo
Vrsta grijanja:
Električni
Oprema:
namješten
Starost ponude: 113dana
Ažurirano: 1dana

Lokaliteti

Carrer de Mallorca, Barcelona
Lokacija je približna, ne znamo tačnu adresu.

Građanske pogodnosti

HousingAnywhere


Slični oglasi

Slično u inostranstvu