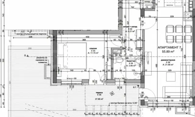
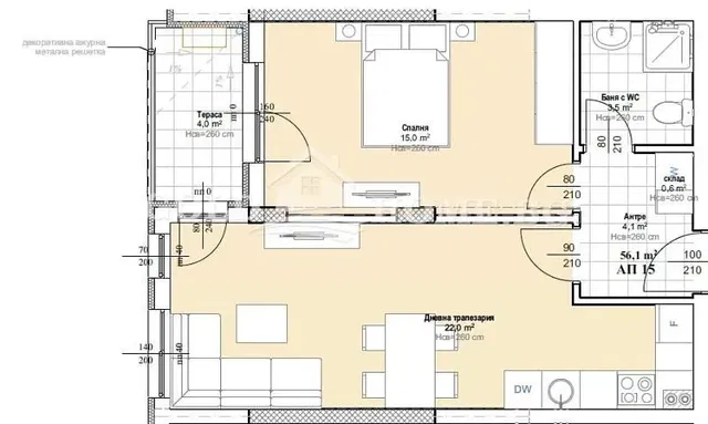
يُعدّ سوق العقارات البلغاري من بين أكثر الأسواق بأسعار معقولة في أوروبا، ويُقدّم قيمة ممتازة مقابل المال. تُوفّر صوفيا بيئة حضرية عصرية وتطوراً ديناميكياً، بينما يجذب ساحل البحر الأسود الزوار بأجوائه الصيفية وفرص الاستثمار الواعدة. وتُقدّم مواقع شهيرة مثل ساني بيتش وفارنا وبورغاس شققاً ومنازل بإطلالات خلابة. أما المناطق الداخلية مثل بانسكو، فهي مثالية لعشاق الرياضات الجبلية والشتوية. لا يقتصر امتلاك عقار في بلغاريا على الأسعار المعقولة فحسب، بل يُساهم أيضاً في زيادة قيمته وإمكانية تأجيره بربح.