Распродаја
Закуп
Блог
О нама
+ Додај својину
Мени
Листа понуда
1
1
266 000 €
Распродаја
2
2+
0 м²
Прикажи на мапи
Додај у омиљене
Дели
спаваћа соба
2
равно
купатила
2+
лифт
Не
паркинг
Не
држава
Друго
подрум
Не
тераса
Не
Опис
Преведи на Енглески
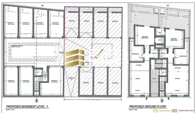
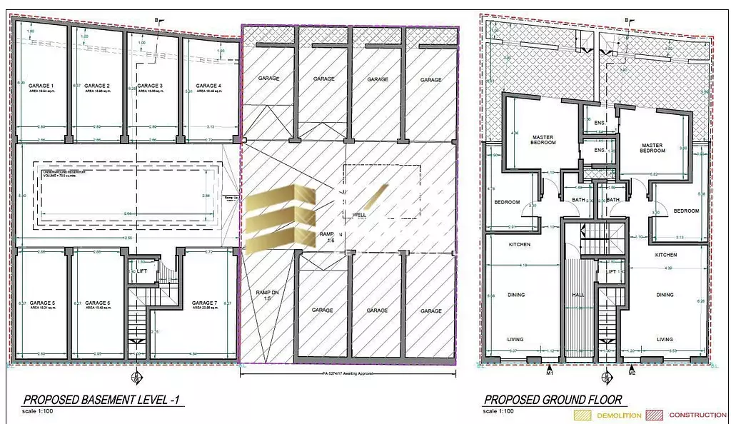
A spacious ground floor Maisonette situated in this quiet area of Burmarrad. Accomodation comprises of a an open plan kitchen/living/dining, 2 bedroom...
Прикажи цео опис
Параметри
Параметри
Власништво:
Друго
Држава:
Друго
Тип зграде:
Друго
Тип грејања:
Друго
Опрема:
Друго
Старост понуде:
349дана
Ажурирано:
348дана
Пријави оглас
Локалитети
Локација је приближна, не знамо тачну адресу.
Захтевајте тачну адресу
Увећај мапу
Грађански садржаји
Excel Homes Real Estate Malta
Excel Homes Real Estate Ltd.
Прикажи имејл
Прикажи телефон
Контактирајте продавца
Excel Homes Real Estate Malta
Excel Homes Real Estate Ltd.
Прикажи имејл
Прикажи телефон
Контактирајте продавца
Слични огласи
|
Слично у иностранству
|
Продаја
Станови
Малта