Prodaja
Изнајмљивање
Блог
O nama
+ Додај понуду
Мени
Popis ponuda
8
8
8
258 000 €
Продажа
2
1
0 м²
Gzira
Прикажи на мапи
Додај у омиљене
Делити
спаваћа соба
2
površina
kupatila
1
лифт
Не
parking
Не
држава
Ostalo
podrum
Не
тераса
Не
Opis
Преведи на engleski
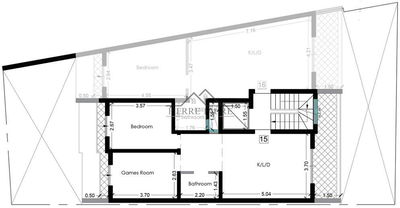
This apartment is located in Gzira just a 5 minute straight walk from the Gzira/Sliema promenade. This apartment has efficient layouts and is being so...
Prikaži ceo opis
Parametri
Oprema & karakteristike
Гаража
Parametri
Власништво:
Ostalo
Стање:
Ostalo
Тип градње:
Ostalo
Тип грејања:
Ostalo
Nameštaj:
Ostalo
Starost ponude:
316 dana
Ažurirano:
315 dana
Пријава огласа
Lokacija
Gzira
Lokacija je približna, ne znamo tačnu adresu.
Zatražiti tačnu adresu
Прегледај карту
Комунална инфраструктура
Pierre Faure Real Estate Ltd.
Steve Spiteri
Прикажи Е-маил
Прикажи телефон
Контактовати продавац
Pierre Faure Real Estate Ltd.
Steve Spiteri
Прикажи Е-маил
Прикажи телефон
Контактовати продавац
Slične ponude
|
Сличне понуде у иностранству
|
Продаја
Станови
Малта