Распродаја
Закуп
Блог
О нама
+ Додај својину
Мени
Листа понуда
490 000 €
(2 178 € / м²)
Распродаја
3
2+
225 м²
Прикажи на мапи
Додај у омиљене
Дели
спаваћа соба
3
равно
225 м²
купатила
2+
лифт
Не
паркинг
Не
држава
Друго
подрум
Не
тераса
Не
Опис
Преведи на Енглески
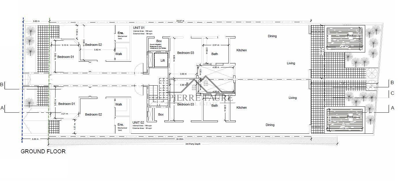
Two Maisonettes in this sought after area of Balzan are now up for Sale.Properties comprise of an open plan kitchen/living/dining, 3 bedrooms (main wi...
Прикажи цео опис
Параметри
Опрема и карактеристике
Гаража
Базен
Параметри
Власништво:
Друго
Држава:
Друго
Тип зграде:
Друго
Тип грејања:
Друго
Опрема:
Друго
Старост понуде:
321дана
Ажурирано:
320дана
Пријави оглас
Локалитети
Локација је приближна, не знамо тачну адресу.
Захтевајте тачну адресу
Увећај мапу
Грађански садржаји
Pierre Faure Real Estate Ltd.
Stefan Consiglio
Прикажи имејл
Прикажи телефон
Контактирајте продавца
Pierre Faure Real Estate Ltd.
Stefan Consiglio
Прикажи имејл
Прикажи телефон
Контактирајте продавца
Слични огласи
|
Слично у иностранству
|
Продаја
Станови
Малта